

Su Casita S.L.
Herr Jan Hannemann
+34 ···
Nr. anzeigenPreise & Kosten
Provision für Käufer
provisionsfrei
Lage
Die ruhige Wohnanlage befindet sich in direkter Nachbarschaft zum Alenda Golfplatz inmitten herrlicher Natur und nur 15 Autominuten von der Innenstadt Alicantes und den langen Sandstränden entfernt. Der berühmte Palmenhain von Elche, der nun zum Welterbe erklärt wurde, ist ebenfalls nur 15 Autominuten entfernt. Die Bergketten...
Das Haus
Kategorie
Reihenmittelhaus
Details
Objektbeschreibung
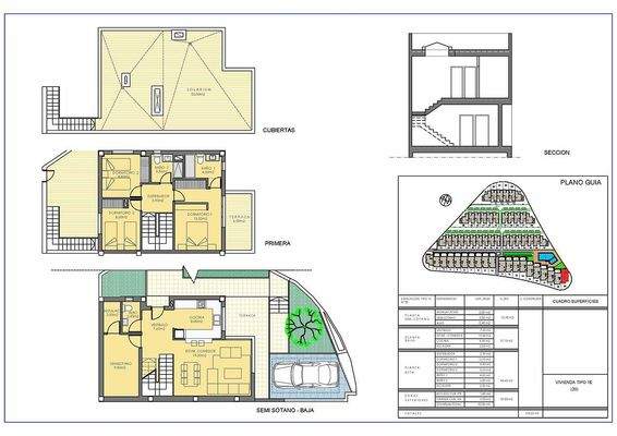
Die wunderschönen und komfortablen Reihenhäuser verfügen über eine konstruierte Fläche von ca. 182 m² - 215 m² (verschiedene Modelle, inklusive Terrassen) mit
3 Schlafzimmern,
2 Badezimmern (eines davon en-suite),
1 Gäste-WC,
1 Wohn-/Esszimmer mit
moderner Einbauküche,
1 Keller (ca. 14 m² - 20 m²),
1...
Ausstattung
Die Häuser werden in hervorragender Qualität erbaut: Wärmedämmung und Schallschutz entsprechend der neuesten Bauvorschriften, Aerothermie für die Heißwasseraufbereitung, PVC-Fenster mit Doppelverglasung und elektrischen Rollläden im Wohnzimmer, Sicherheitstüren, Vorinstallation Klimaanlage, Einbauschränke in den Schlafzimmern...
Preisinformation
1 Stellplatz
Weitere Informationen
Sonstiges
Der Energieausweis ist in Vorbereitung.
Stichworte
Anzahl der Schlafzimmer: 3, Anzahl der Badezimmer: 2, Anzahl Terrassen: 3, Bundesland: Valencia, Lage im Wohngebiet
Anbieter der Immobilie
Su Casita S.L.
Calle Atenas, 59, 03177 San Fulgencio / SPANIEN

Online-ID: 2je835t
Referenznummer: HA-OTN-110-R02
Finde Angebote wie dieses
Hier geht es zu unserem Impressum, den Allgemeinen Geschäftsbedingungen, den Hinweisen zum Datenschutz und nutzungsbasierter Online-Werbung.