
VON POLL IMMOBILIEN Velbert - Alina Karla
Frau Amina Berovic
004 ···
Nr. anzeigenPreise & Kosten
Kaution
2.400,00 2 Monatskaltmieten
Provision für Mieter
provisionsfrei
Warum sehe ich diese Anzeige? – Du siehst diese Anzeige basierend auf Ihrer Navigation auf unserer Website und den Suchkriterien, die du verwendet hast.
Lage
In der begehrtesten Velberter Innenstadtlage befindet sich dieses Wohn- und Geschäftshaus.
Hier sind kurze Wege garantiert!
Die Verkehrsanbindung in die nahe liegenden Großstädte Essen, Düsseldorf und Wuppertal ist hervorragend durch die A3, die A44 und die A46.
Die Velberter Fußgängerzone bietet alles für den...
Büro-/Praxisfläche
Kategorie
Bürofläche
Baujahr
1889
Energie & Heizung
Warum sehe ich diese Anzeige? – Du siehst diese Anzeige basierend auf Ihrer Navigation auf unserer Website und den Suchkriterien, die du verwendet hast.
Wärme
Energieausweistyp
Bedarfsausweis
Gebäudetyp
Nicht-Wohngebäude
Baujahr laut Energieausweis
2017
Wesentliche Energieträger
GAS
Gültigkeit
bis 14.01.2029
Endenergiebedarf (Wärme)
255,00 kWh/(m²·a)
Details
Objektbeschreibung
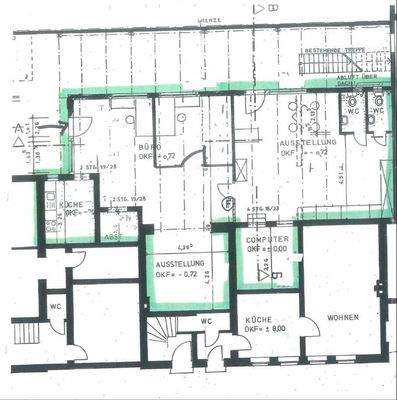
Diese großzügige Immobilie im Herzen der Stadt bietet zahlreiche Möglichkeiten für Unternehmer und Selbstständige, die nach einem repräsentativen Büro- oder Praxisraum suchen. Mit insgesamt fünf Zimmern und einer Fläche von ca. 148 m² bietet dieses Objekt genügend Raum für eine individuelle Gestaltung und optimale...
Ausstattung
- Fläche: 148 m²
- Kaltmiete: 1.200,00 Euro
- Nebenkosten: 200 Euro
- Zwei Badezimmer mit Dusche
- vier Zimmer + Küche
- attraktive Innenstadtlage
- Anpassbare Nutzungsmöglichkeiten
- Je nach Mindestmietdauer würde der Eigentümer ein entsprechende Renovierung und Anpassung an Ihr Konzept übernehmen
Preisinformation
2 Stellplätze
Weitere Informationen
Sonstiges
Es liegt ein Energiebedarfsausweis vor.
Dieser ist gültig bis 14.1.2029.
Endenergiebedarf für die Wärme beträgt 255.00 kwh/(m²*a).
Endenergiebedarf für den Strom beträgt kwh/(m²*a).
Wesentlicher Energieträger der Heizung ist Gas.
HAFTUNG: Wir weisen darauf hin, dass die von uns...
Anbieter der Immobilie
VON POLL IMMOBILIEN Velbert - Alina Karla
Poststraße 9, 42551 Velbert
Online-ID: 2jebs5b
Referenznummer: 25250008
Finde Angebote wie dieses
Hier geht es zu unserem Impressum, den Allgemeinen Geschäftsbedingungen, den Hinweisen zum Datenschutz und nutzungsbasierter Online-Werbung.