

Gerdi Zwingel Immobilien oHG
Herr Gerald Gastner
+49 ···
Nr. anzeigenPreise & Kosten
Provision für Käufer
4,76% vom Kaufpreis inkl. 19% MwSt. Durch den Käufer ist eine Nachweis- bzw. Vermittlungsprovision zu bezahlen, verdient und fällig bei Abschluss des notariellen Kaufvertrages.
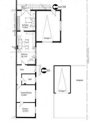
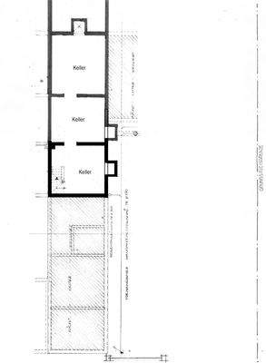
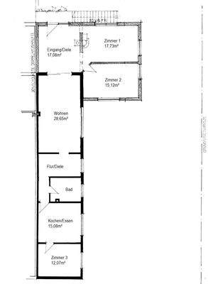
Das Haus
Geschosse
2 Geschosse
Baujahr
1970
Bezug
nach Vereinbarung
Energie & Heizung
Warum sehe ich diese Anzeige? – Du siehst diese Anzeige basierend auf Ihrer Navigation auf unserer Website und den Suchkriterien, die du verwendet hast.
Energieausweistyp
Bedarfsausweis
Gebäudetyp
Wohngebäude
Baujahr laut Energieausweis
1972
Wesentliche Energieträger
Gas
Gültigkeit
26.02.2025 bis 25.02.2035
Effizienzklasse
G
Endenergiebedarf
229,10 kWh/(m²·a)
Weitere Energiedaten
Energieträger
Gas
Heizungsart
Zentralheizung
Details
Objektbeschreibung
Die Lage:
Das Haus liegt zwischen Paul-Metz-Straße und Banderbacher Straße im westlichen Teil von Zirndorf.
- Bushaltestelle „Siedlerstraße“ 200m / 3min zu Fuß
- Bahnhof „Zirndorf-Kneippallee“ 850m / 12min zu Fuß
- Zirndorf Mitte 1,5km / 19min zu Fuß
- Fürth Hbf 8km / 17min p. PKW / 25min p. ÖPNV
-...
Weitere Informationen
Besichtigungstermine
Bitte senden Sie uns Ihre Kontaktdaten mit Angabe Ihrer Telefonnummer. Wir rufen Sie zwecks Terminabsprache zurück.
Stichworte
Versorgung: Städtische Wasserversorgung, Städtische Stromversorgung
Sonstiges: frei werdend
Anbieter der Immobilie

Online-ID: 2jeg75p
Referenznummer: 2432
Finde Angebote wie dieses
Hier geht es zu unserem Impressum, den Allgemeinen Geschäftsbedingungen, den Hinweisen zum Datenschutz und nutzungsbasierter Online-Werbung.