
Castellanum
Firma Castellanum Meran - Merano
003 ···
Nr. anzeigenPreise & Kosten
Provision für Käufer
3 zzgl. MwSt.
Die Industriefläche
Kategorie
Lagerhalle
Bezug
auf Absprache
Energie & Heizung
Warum sehe ich diese Anzeige? – Du siehst diese Anzeige basierend auf Ihrer Navigation auf unserer Website und den Suchkriterien, die du verwendet hast.
Energieausweistyp
Verbrauchsausweis
Gebäudetyp
Nicht-Wohngebäude
Weitere Energiedaten
Energieträger
Öl
Details
Objektbeschreibung
Castellanum bietet exklusiv den Verkauf eines gesamten Gebäudes an, das sich in strategisch günstiger Lage im Industriegebiet Bozen Nord befindet, nur wenige Minuten vom historischen Stadtzentrum entfernt. Die Immobilie zeichnet sich durch hervorragende Sichtbarkeit und Zugänglichkeit aus, dank der Nähe zu den wichtigsten...
Weitere Informationen
Stichworte
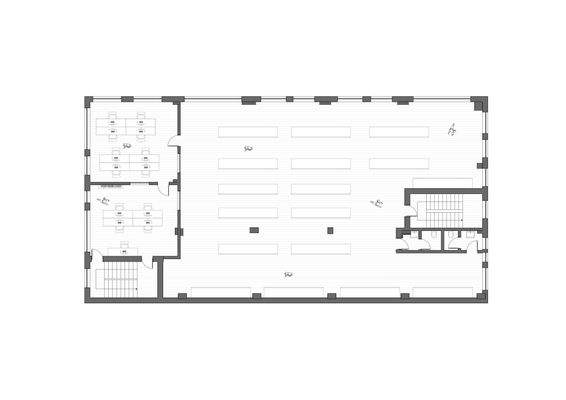
Lagerfläche: 608,69 m², Nutzfläche: 981,24 m², Verkaufsfläche: 1.297,00 m², Anzahl der separaten WCs: 2, Kellerfläche: 44,73 m², 3 Etagen
Anbieter der Immobilie
Castellanum
Trattengasse 7, 37042 Brixen (BZ)
Online-ID: 2jeym5z
Referenznummer: BZ13644
Finde Angebote wie dieses
Hier geht es zu unserem Impressum, den Allgemeinen Geschäftsbedingungen, den Hinweisen zum Datenschutz und nutzungsbasierter Online-Werbung.