

Küspert & Küspert Immobilienberatung
Frau Luisa Zaha Krutzki
+49 ···
Nr. anzeigenPreise & Kosten
Provision für Mieter
provisionsfrei
Warum sehe ich diese Anzeige? – Du siehst diese Anzeige basierend auf Ihrer Navigation auf unserer Website und den Suchkriterien, die du verwendet hast.
Lage
ÖPNV: U-Bahnanschluss ca. 9 Gehminuten, Bushaltestelle ca. 2 Gehminuten - nächste Autobahnanschlussstelle: A3 Nürnberg-Nord ca. 3 Fahrminuten - Nürnberg Hauptbahnhof ca. 16 Fahrminuten - City ca. 18 Gehminuten - Flughafen ca. 10 Fahrminuten entfernt
Büro-/Praxisfläche
Kategorie
Bürogebäude
Energie & Heizung
Warum sehe ich diese Anzeige? – Du siehst diese Anzeige basierend auf Ihrer Navigation auf unserer Website und den Suchkriterien, die du verwendet hast.
Wärme
Strom
Energieausweistyp
Bedarfsausweis
Gebäudetyp
Nicht-Wohngebäude
Baujahr laut Energieausweis
2009
Wesentliche Energieträger
Erdwärme, Fernwärme
Gültigkeit
bis 03.07.2024
Endenergiebedarf (Wärme)
18,20 kWh/(m²·a)
Endenergiebedarf (Strom)
30,40 kWh/(m²·a)
Weitere Energiedaten
Energieträger
Erdwärme, Fernwärme
Details
Objektbeschreibung
- Baujahr: 2009
- Personen- und Lastenaufzüge vorhanden
- flexibles Raumkonzept
- repräsentativer Empfangsbereich
- modernste Glasfaserleitungen
- Deckenheizung und Kühlung mit Geothermie zusätzliche Absicherung durch Fernwärme mit konventionellen Heizkörpern
- barrierefrei
Serviceangebote im...
Ausstattung
- außenliegender Sonnenschutz
- Raumaufteilung flexibel gestaltbar
- Deckenbeleuchtung, EDV-Arbeitsplatzbeleuchtung
- Glasfaseranbindung vorhanden
- Teeküchenanschluss vorhanden
- getrennte Damen- und Herren-WCs, teilweise mit Dusche
- antistatischer Teppichboden, teilweise Vinylboden
- Serverraum
Weitere Informationen
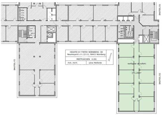
Flächen
Bürofläche im 6. Obergeschoss mit ca. 391,00 m²
Stellplätze, oberirdisch: auf Anfrage
Stellplätze im Parkhaus: auf Anfrage
Miete/Monat
Büroflächen: ab 11,00 EUR/m²
Stellplätze, oberirdisch: 40,00 EUR/Stk.
Stellplätze im Parkhaus: 55,00 EUR/Stk.
Alle Mietpreise zzgl. der gesetzl...
Anbieter der Immobilie

Online-ID: 2jf2t5e
Referenznummer: 1/306/9999/Eh8
Finde Angebote wie dieses
Hier geht es zu unserem Impressum, den Allgemeinen Geschäftsbedingungen, den Hinweisen zum Datenschutz und nutzungsbasierter Online-Werbung.