
massa haus - Daniel Krzok
Kontaktiere den Anbieter schriftlich, es ist keine Telefonnummer hinterlegt.
Preise & Kosten
Provision für Käufer
provisionsfrei
Lage
Das südliche Berlin mit dem angrenzenden "Speckgürtel" ist DIE TOP-Adressen wenn es heutzutage ums Thema Bauen geht. Wohnen zwischen Wasser, Villen und Wald heißt es hier mit perfekter Infrastruktur - egal ob Einkaufsmöglichkeiten, Schulen, Kitas oder Ärzte... Alles ist vorhanden und in Kürze ist man Dank Bus, Bahn und...
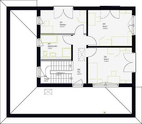
Das Haus
Kategorie
Einfamilienhaus
Details
Objektbeschreibung
FLEXIBLE RAUMORGANISATION, UNGEWÖHNLICHE LÖSUNGEN
Individuelles Wohnen auf einer Nettogrundfläche ab ca. 175 m²! Unser spannendes LifeStyle 17.02 W bietet dafür nicht nur die passende, attraktive Außenansicht, sondern auch - unter Einbezug der schönen Freiterrasse - einen nahezu quadratischen Grundriss. Und damit die...
Ausstattung
So könnte Ihr Traumhaus aussehen, muss es aber nicht! Denn Ihr massa-haus ist flexibel und individuell nach Ihren Wünschen planbar und zu gestalten. Mit ein wenig Unterstützung ist der Innenausbau handwerklich für jedermann machbar. Da bietet es sich doch an, dass Ihnen perfekt abgestimmte Ausbaupakete und professionelle...
Weitere Informationen
Sonstiges
Warum mit Massa-Haus?
- Erfahrung im Hausbau seit über 45 Jahren
- TOP Preis-Leistungs-Verhältnis
- Qualitätsversprechen
- Professionelle und individuelle Beratung
- Planung und Mitgestaltung der Grundrisse
- Bezahlung des Hauses erst nach Abnahme
- Montage innerhalb weniger Tage
-...
Anbieter der Immobilie
massa haus - Daniel Krzok
Volksgutstraße 23, 12529 Schönefeld
Kontaktiere den Anbieter schriftlich, es ist keine Telefonnummer hinterlegt.
Online-ID: 2jf4v5j
Referenznummer: 152836020
Finde Angebote wie dieses
Hier geht es zu unserem Impressum, den Allgemeinen Geschäftsbedingungen, den Hinweisen zum Datenschutz und nutzungsbasierter Online-Werbung.