

DIVARES GmbH & Co. KG
Frau Lisa Wegener
+49 ···
Nr. anzeigenPreise & Kosten
Provision für Käufer
5,95 %
Lage
+ zentrale Lage im Herzen des Erzgebirges
+ gute Erreichbarkeit durch nahegelegene Autobahn A4 und Bundesstraße B101
+ Bahnhof Marienberg in wenigen Minuten erreichbar
+ Mischung aus industriellen und gewerblichen Nutzungen
+ diverse Dienstleistungsunternehmen, Einzelhändler und Gastronomie in der Nähe
+...
Die Industriefläche
Kategorie
Werkstatt
Baujahr
1995
Energie & Heizung
Warum sehe ich diese Anzeige? – Du siehst diese Anzeige basierend auf Ihrer Navigation auf unserer Website und den Suchkriterien, die du verwendet hast.
Wärme
Strom
Energieausweistyp
Verbrauchsausweis
Gebäudetyp
Nicht-Wohngebäude
Baujahr laut Energieausweis
1995
Wesentliche Energieträger
ERDGAS_SCHWER
Gültigkeit
bis 31.03.2035
Endenergieverbrauch (Wärme)
173,20 kWh/(m²·a)
Endenergieverbrauch (Strom)
3,90 kWh/(m²·a)
Details
Objektbeschreibung
+ Baujahr 1995
+ ca. 1.200 m² Verkaufsfläche, Lagerflächen, Werkstatt, Personalräume und mehr im Erdgeschoss
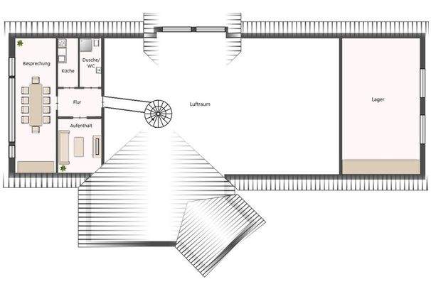
+ ca. 92 m² Räumlichkeiten und weitere ca. 90 m² Lagerfläche im Dachgeschoss
+ Übernahme des Autohauses mit Mitarbeitern möglich
+ kein Instandhaltungsrückstau oder Reparaturbedarf
Ausstattung
+ lichtdurchflutete und ansprechende Ausstellungsfläche
+ Büroflächen im hinteren Bereich des Verkaufsbereichs
+ gut ausgestattete Werkstatt mit vier Hebebühnen
+ Aufenthaltsraum mit Küche und Umkleiden, WCs und Waschräume
+ Lagerflächen unter dem Dach
+ über Ausstellungsfläche im Dachgeschoss ausgestattet mit...
Weitere Informationen
Sonstiges
Es liegt ein Energieverbrauchsausweis vor.
Dieser ist gültig bis 31.3.2035.
Endenergieverbrauch für die Wärme beträgt 173.20 kwh/(m²*a).
Endenergieverbrauch für den Strom beträgt 3.90 kwh/(m²*a).
Wesentlicher Energieträger der Heizung ist Erdgas schwer.
Nicht das Passende? Weitere interessante...
Anbieter der Immobilie

Online-ID: 2jf6w5j
Referenznummer: 11191
Finde Angebote wie dieses
Hier geht es zu unserem Impressum, den Allgemeinen Geschäftsbedingungen, den Hinweisen zum Datenschutz und nutzungsbasierter Online-Werbung.