
Immobilien Scott GmbH
Herr Thomas Scott
037 ···
Nr. anzeigenPreise & Kosten
Provision für Käufer
Provisionsfrei
Lage
Plauen mit ca. 65.000 Einwohnern ist die größte Stadt des Vogtlandes und fünftgrößte Stadt im Freistaat Sachsen. Die Stadt wurde durch die Plauener Spitze bekannt und gilt als architektonisch reizvoll. Das Gewerbe findet man im Zentrum von Plauen in einer bekannten Parallelstraße zur beliebten Einkaufsmeile Bahnhofstraße...
Büro-/Praxisfläche
Baujahr
1900
Derzeitige Nutzung
vermietet
Energie & Heizung
Warum sehe ich diese Anzeige? – Du siehst diese Anzeige basierend auf Ihrer Navigation auf unserer Website und den Suchkriterien, die du verwendet hast.
Weitere Energiedaten
Energieträger
Gas
Heizungsart
Zentralheizung
Details
Objektbeschreibung
Kurzbeschreibung
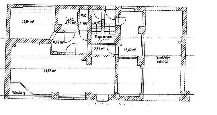
Objekt-Nr.: 165/24 - RENDITE 8,4 % - Gesamte Büroetage im EG - Fläche 91 m² - Schöner vermieteter Laden mit 2 Büros, 2 WC´s und 2 Stellplätzen in 1A-Lage mitten im Zentrum von Plauen
Objekt
Provisionsfrei! - - - Die Gewerbeeinheit findet man in einem gepflegten 3-geschossigen ca. 1900 massiv...
Ausstattung
Laminat, 2 halbhoch geflieste Bäder mit WC und Fenster (in einem Bad zusätzlich mit Pissoir), Außenrollos, Gas-Zentralheizung, Fenster aus Kunststoff-Isolierverglasung, 2 Stellplätze.
Preisinformation
74.300,- EUR, Ist-Mieteinnahmen pro Jahr: 6.192,00 EUR
Weitere Informationen
Sonstiges
Grundstück: Das Grundstück hat eine Größe von 461 m². Der Hinterhof ist per Durchfahrt befahrbar und mit Stellplätzen versehen. Zum hier angebotenen Gewerbe gehört ein Sondernutzungsrecht für 2 Stellplätze. - - - Sonstiges: Die Gewerbeeinheit ist seit 2016 an den jetzigen Mieter vermietet. Die derzeitige mtl...
Anbieter der Immobilie
Immobilien Scott GmbH
Gabelsberger Straße 13, 08523 Plauen
Online-ID: 2jff85n
Referenznummer: 16524
Finde Angebote wie dieses
Hier geht es zu unserem Impressum, den Allgemeinen Geschäftsbedingungen, den Hinweisen zum Datenschutz und nutzungsbasierter Online-Werbung.