
Bonava Deutschland GmbH
Team Ihr Beratungsteam der Bonava Deutschland GmbH
+49 ···
Nr. anzeigenDieses Angebot ist Teil des Neubauprojekts
Fontaneviertel
Preise & Kosten
Provision für Käufer
provisionsfrei
Lage
Mitten in einer idyllischen Landschaft aus schattigen Kiefernwäldern und zahlreichen Seen entsteht unser familienfreundliches Neubauquartier - das Fontaneviertel. Es liegt in der Waldstadt, die früher zu Wünsdorf gehörte - einem Teil des historischen kurfürstlichen Amtes Zossen. Zur nächsten Grundschule sind es 600 m und zum...
Das Haus
Kategorie
Reihenmittelhaus
Bezug
01.12.2026
Das Neubauprojekt
Energie & Heizung
Warum sehe ich diese Anzeige? – Du siehst diese Anzeige basierend auf Ihrer Navigation auf unserer Website und den Suchkriterien, die du verwendet hast.
Weitere Energiedaten
Haustyp
Massivhaus
Heizungsart
Fußbodenheizung, Luft-/Wasser-Wärmepumpe
Details
Objektbeschreibung
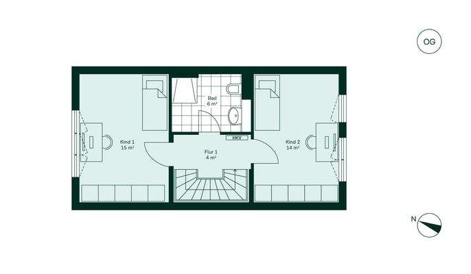
Mit fünf geräumigen Zimmern und einer sonnigen Terrasse können Sie und Ihre Liebsten sich hier absolut wohlfühlen.
Dieses Reihenhaus überzeugt durch einen offenen und hellen Wohnbereich im Erdgeschoss, der direkt auf die Terrasse führt. Ideal für entspannte Stunden im Freien. Eine offene Küche, die zum Kochen und...
Ausstattung
- Terrasse
- bodentiefe Fenster
- offener Wohn- und Essbereich
- Gäste-WC
- bodengleiche Dusche und Badewanne
- Rollläden
- Fußbodenheizung
- zwei Außenstellplätze
- kleiner Gartenanteil
- Effizienzhaus 55 mit Fußbodenheizung
- Quartierstreffpunkt mit Leseecke
Preisinformation
2 Stellplätze
Weitere Informationen
Sonstiges
Wir übernehmen Ihre Notarkosten
Bei Reservierung Ihrer Wunschimmobilie im Fontaneviertel bis 31.08.2025 übernehmen wir die Notarkosten* für Sie. Der Notar spielt eine große Rolle bei der Vertragserläuterung. So sind Sie rechtlich bestens abgesichert. Bis dahin unterstützen wir Sie gerne bei allen Fragen...
Anbieter der Immobilie
Online-ID: 2jflu5b
Referenznummer: 132862113#EXcPsm
Finde Angebote wie dieses
Hier geht es zu unserem Impressum, den Allgemeinen Geschäftsbedingungen, den Hinweisen zum Datenschutz und nutzungsbasierter Online-Werbung.