
Garda Haus Srl
Frau Segreteria Jesolo
003 ···
Nr. anzeigenPreise & Kosten
Provision für Käufer
ja maklerprovision im Preis nicht inbegriffen inkl. MwSt.
Lage
Von der Wohnung im Herzen von Burano aus werden Sie in eine Explosion von Farben und eine einzigartige Atmosphäre eintauchen. Sie spazieren zwischen den charakteristischen bunten Häusern, die sich in den Kanälen spiegeln, und bewundern den schiefen Glockenturm San Martino. In den historischen Werkstätten entdecken Sie die...
Das Haus
Kategorie
Einfamilienhaus
Baujahr
1964
Energie & Heizung
Warum sehe ich diese Anzeige? – Du siehst diese Anzeige basierend auf Ihrer Navigation auf unserer Website und den Suchkriterien, die du verwendet hast.
Energieausweistyp
Bedarfsausweis
Gebäudetyp
Wohngebäude
Baujahr laut Energieausweis
1962
Gültigkeit
bis 01.04.2035
Endenergiebedarf
199,26 kWh/(m²·a)
Weitere Energiedaten
Energieträger
Gas
Heizungsart
Etagenheizung
Details
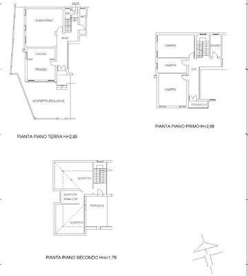
Objektbeschreibung
Eleganter Teil eines Dreifamilienhauses mit privatem Garten im Herzen von Burano
Im bezaubernden historischen Zentrum von Burano, nur einen Steinwurf von den bunten Calli und der lebendigen Atmosphäre der Insel entfernt, bieten wir ein seltenes und charmantes Dreifamilienhaus mit großzügigen Ausmaßen zum Verkauf an...
Weitere Informationen
Sonstiges
Wir begleiten Sie nach Terminvereinbarung persönlich zu den Objekten und stehen Ihnen während des gesamten Prozesses des Immobilienerwerbs als starker und kompetenter Partner zur Seite. Mit uns gehen Sie keine Kompromisse ein und überlassen nichts dem Zufall. Umfassender Service ist für uns nicht nur ein Wort...
Anbieter der Immobilie
Garda Haus Srl
Via Meucci 77, 25080 PADENGHE SUL GARDA
Online-ID: 2jfr55r
Referenznummer: JE-025
Finde Angebote wie dieses
Hier geht es zu unserem Impressum, den Allgemeinen Geschäftsbedingungen, den Hinweisen zum Datenschutz und nutzungsbasierter Online-Werbung.