
ISS Communication Services GmbH
Frau Samira Kiy
+49 ···
Nr. anzeigenPreise & Kosten
Kaution
3 MM
Provision für Mieter
provisionsfrei
Warum sehe ich diese Anzeige? – Du siehst diese Anzeige basierend auf Ihrer Navigation auf unserer Website und den Suchkriterien, die du verwendet hast.
Lage
1B-Lage
Das Objekt bietet in perfekter innerstädtischen Lage eine ausgezeichnete ÖPNV-Anbindung und Infrastruktur, mit zahlreichen Versorgungsmöglichkeiten des täglichen Bedarfs, mit Fachgeschäften, Banken und Standorten namhafter Firmen in der Nachbarschaft.
Verschiedene Unternehmen und Banken (Commerzbank, IHK...
Die Ladenfläche
Kategorie
Laden
Baujahr
1988
Bezug
1.Q.2026
Energie & Heizung
Warum sehe ich diese Anzeige? – Du siehst diese Anzeige basierend auf Ihrer Navigation auf unserer Website und den Suchkriterien, die du verwendet hast.
Wärme
Strom
Energieausweistyp
Verbrauchsausweis
Gebäudetyp
Nicht-Wohngebäude
Baujahr laut Energieausweis
1988
Wesentliche Energieträger
Fernwärme,Strom
Endenergieverbrauch (Wärme)
1.142,00 kWh/(m²·a)
Endenergieverbrauch (Strom)
90,40 kWh/(m²·a)
Details
Objektbeschreibung
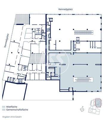
Der gepflegte, bis zu sechsgeschossige Gewerbekomplex, mit allbekannter Adresse direkt am Kennedyplatz und Markt, wurde Ende der 80er Jahre errichtet. Das Objekt erstreckt sich im nördlichen Teil vom Kennedyplatz 1, Markt 1 zur Kettwiger Straße 47.
Im Erd- und 1. Obergeschoss befinden sich platzseitig überwiegend...
Weitere Informationen
Sonstiges
Retailfläche vom 1. UG bis 1. Obergeschoss im Gebäudeteil Kettwiger Straße 47.
- Retailfläche im Erdgeschoss und 1. Obergeschoss zu monatlich 25,00 €/m²
- Sozialräume und Lagerflächen im Untergeschoss zu monatlich 14,50 €/m²
Die Fläche wird als Erstbezug nach der Revitalisierung angeboten...
Anbieter der Immobilie
ISS Communication Services GmbH
Theodorstraße 178, 40472 Düsseldorf
Online-ID: 2jfrq5a
Referenznummer: 400201-1-L1
Finde Angebote wie dieses
Hier geht es zu unserem Impressum, den Allgemeinen Geschäftsbedingungen, den Hinweisen zum Datenschutz und nutzungsbasierter Online-Werbung.