
Schmidbauer Immobilien Kreta
Herr Oskar Josef Schmidbauer
+49 ···
Nr. anzeigenPreise & Kosten
Provision für Käufer
3,1 % (inklusive MwSt.) vom Verkaufspreis
Lage
Das ruhige und traditionelle Dorf Pirgou (auch Pyrgou) liegt im Landesinneren Kretas, rund 25 km südwestlich von Heraklion. Kulturliebhaber kommen hier auf ihre Kosten, denn es gibt mehrere interessante byzantinische Kirchen zu bestaunen. Während der venezianischen Besatzung wurde im Dorf Wein aus der Rebsorte Muskat...
Das Haus
Baujahr
1900
Energie & Heizung
Warum sehe ich diese Anzeige? – Du siehst diese Anzeige basierend auf Ihrer Navigation auf unserer Website und den Suchkriterien, die du verwendet hast.
Energieausweistyp
Bedarfsausweis
Gebäudetyp
Wohngebäude
Baujahr laut Energieausweis
1900
Effizienzklasse
H
Weitere Energiedaten
Heizungsart
offener Kamin
Details
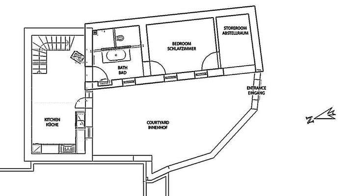
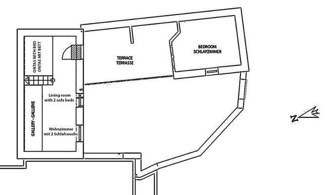
Objektbeschreibung
Das traditionelle Natursteinhaus befindet sich im malerischen Dorf Pirgou (Pyrgou), 20 Autominuten von Heraklion entfernt.
Es liegt mitten im Dorf - typisch kretisch zwischen anderen Häusern, in einer sehr ruhigen Umgebung mit Blick auf die nahen Berge. Es wurde um 1900 erbaut und von 2007 bis 2010 nach modernen Standards...
Weitere Informationen
Sonstiges
Wir sind deutsche Immobilienmakler und haben uns spezialisiert auf Immobilien aus Kreta. Neben der Suche nach geeigneten Immobilien auf Kreta für Sie, gehört auch das Organisieren von Besichtigungsterminen auf Kreta zu unserem Portfolio.
Zu jeder Phase Ihres Immobilienerwerbs auf Kreta stehen wir Ihnen zur...
Anbieter der Immobilie
Online-ID: 2jftx55
Referenznummer: SI-3h
Finde Angebote wie dieses
Hier geht es zu unserem Impressum, den Allgemeinen Geschäftsbedingungen, den Hinweisen zum Datenschutz und nutzungsbasierter Online-Werbung.