
Flathopper GmbH
Frau Lena Schmid
004 ···
Nr. anzeigenPreise & Kosten
Kaution
1.250,00 1 MM
Warum sehe ich diese Anzeige? – Du siehst diese Anzeige basierend auf Ihrer Navigation auf unserer Website und den Suchkriterien, die du verwendet hast.
Lage
ca. 7 km zum Chiemsee
ca. 10 km zum Schloss Herrenchiemsee
ca. 16 km nach Rosenheim. Beste Verbindung dorthin auch mit der Bahn.
ca. 70 km nach Salzburg
ca. 80 km nach München
Wohnen auf Zeit
Kategorie
Wohnung
Baujahr
2008
Frei
ab 03.01.2026
Max. Personenanzahl
3
Mindestmietdauer
1 Monat
Wohnungslage
Erdgeschoss
Energie & Heizung
Warum sehe ich diese Anzeige? – Du siehst diese Anzeige basierend auf Ihrer Navigation auf unserer Website und den Suchkriterien, die du verwendet hast.
Energieausweistyp
Verbrauchsausweis
Gebäudetyp
Wohngebäude
Baujahr laut Energieausweis
2008
Wesentliche Energieträger
GAS
Gültigkeit
31.10.2014 bis 30.10.2024
Effizienzklasse
A
Endenergieverbrauch
47,40 kWh/(m²·a)
Weitere Energiedaten
Energieträger
Gas
Details
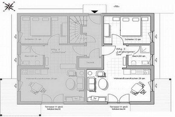
Objektbeschreibung
Möbliertes Wohnen auf Zeit:
Idyllisch gelegene 2-Zimmer Wohnung mit Terrasse und Garten sowie Parkplatz in Bad Endorf - Landkreis Rosenheim
Achtung Ferienwohnung, Preise nach Saison:
Mai und September Monatsmiete: EUR 1950
Juni und Juli Monatsmiete: EUR 2500
Oktober - April Monatsmiete: EUR...
Ausstattung
Garten
Kfz-Unterbingung
möbliert
provisionfrei
ruhig gelegen
Terrasse
Bettwäsche
Doppelbett
Einbauküche
Fliesen
Handtücher
Internet
Kaffeemaschine
Kühl-/ Gefrierkombi
Mikrowelle
Spülmaschine
Trockner
TV
Waschmaschine
Preisinformation
1 Stellplatz
Weitere Informationen
Stichworte
Anzahl der Schlafzimmer: 1, Anzahl der Badezimmer: 1, Anzahl Terrassen: 1, nur Nichtraucher, Mindestmietdauer: 1 Monat
Anbieter der Immobilie
Flathopper GmbH
Pfarrer-Klaas-Str. 1, 83059 Kolbermoor
Online-ID: 2jg3p5s
Referenznummer: AG112643
Finde Angebote wie dieses
Hier geht es zu unserem Impressum, den Allgemeinen Geschäftsbedingungen, den Hinweisen zum Datenschutz und nutzungsbasierter Online-Werbung.