

Immobilien Stöger
Herr Thomas Stöger
086 ···
Nr. anzeigenPreise & Kosten
Provision für Käufer
3,57 % inkl. MwSt.
Lage
Grassau liegt im Herzen des Chiemgaus, einer der attraktivsten Regionen Bayerns, und beeindruckt durch seine idyllische Umgebung mit einer perfekten Mischung aus Natur und Infrastruktur. Eingebettet zwischen den Chiemgauer Alpen und dem Chiemsee, bietet Grassau eine Vielzahl an Freizeitmöglichkeiten: von ausgedehnten...
Das Haus
Kategorie
Doppelhaushälfte
Energie & Heizung
Warum sehe ich diese Anzeige? – Du siehst diese Anzeige basierend auf Ihrer Navigation auf unserer Website und den Suchkriterien, die du verwendet hast.
Energieausweis: für diesen Gebäudetyp nicht notwendig
Weitere Energiedaten
Energieträger
Elektro
Details
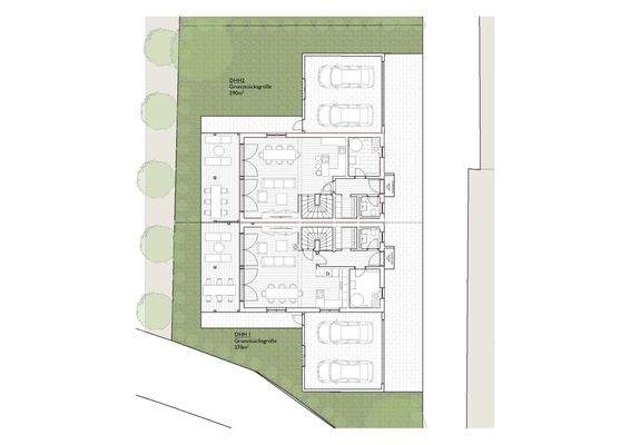
Objektbeschreibung
In der Bahnhofstraße in Grassau bieten wir Ihnen ein vielseitig bebaubares Grundstück mit einer Fläche von ca. 1.000 m² an. Die hervorragende Lage sowie die attraktiven Entwicklungsmöglichkeiten machen dieses Angebot besonders interessant - sowohl für private Bauherren als auch für Investoren.
Optimale...
Ausstattung
- Effizienzklasse KfW40+
- Bodenplatte (gegen Aufpreis auch mit Keller möglich!)
- elektrische Rollläden
- 3-Scheiben-Wärmeschutzverglasung
- Einbruchschutz
- Frostsicherer Außenwasserhahn
- verstärkte Trittschalldämmung
- Thermo-Effizienzwand
- Fußbodenheizung in allen zwei Geschossen
-...
Weitere Informationen
Stichworte
Anzahl der Schlafzimmer: 3, Anzahl der Badezimmer: 1, Anzahl Balkone: 1, Bundesland: Bayern
Anbieter der Immobilie

Online-ID: 2jg4z5g
Referenznummer: DHHG1
Finde Angebote wie dieses
Hier geht es zu unserem Impressum, den Allgemeinen Geschäftsbedingungen, den Hinweisen zum Datenschutz und nutzungsbasierter Online-Werbung.