
HGI Immobilien GmbH
Herr Leon Schröder
052 ···
Nr. anzeigenPreise & Kosten
Provision für Käufer
Käufercourtage vorhanden
Lage
Diese charmante Wohnung befindet sich in dem begehrten Stadtteil Hillegossen, eingebettet im östlichen Teil von Bielefeld. Hillegossen zeichnet sich durch eine harmonische Symbiose aus zahlreichen Einkaufsmöglichkeiten, die alle innerhalb weniger Minuten zu Fuß erreichbar sind, sowie der umgebenden Natur aus, was diesen Ort...
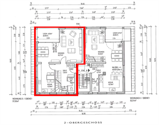
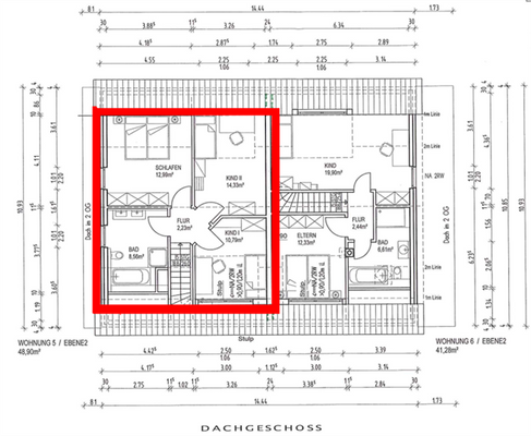
Die Wohnung
Kategorie
Maisonette
Bezug
Nach Vereinbarung
Energie & Heizung
Warum sehe ich diese Anzeige? – Du siehst diese Anzeige basierend auf Ihrer Navigation auf unserer Website und den Suchkriterien, die du verwendet hast.
Weitere Energiedaten
Energieträger
Erdwärme
Heizungsart
Fußbodenheizung
Details
Objektbeschreibung
Hier erwartet Sie ein wahrer Wohnjuwel!
Diese charmante Maisonette-Wohnung, gelegen in einem 6-Parteien-Haus in Bielefeld-Hillegossen, verbindet modernen Wohnkomfort mit einer einladenden Atmosphäre.
Die erste Etage der Wohnung wurde in den Jahren 2012-2013 kernsaniert, das Dachgeschoss vollständig neu gebaut und...
Ausstattung
- KFW 70
- Erdwärmepumpe
- Solider Ziegelbau
- Elektrische Jalousien
- Gegensprechanlage
- Fliesen im Badezimmer
- Badezimmer mit Dusche und Badewanne
- Gäste-WC
- PKW Außenstellplatz
- Kellerraum
- Gemeinschaftsgarten mit Gartenhaus
In dem Objekt ist kein Fahrstuhl vorhanden.
Anbieter der Immobilie
Online-ID: 2jg9f5e
Referenznummer: HGI 9712
Finde Angebote wie dieses
Hier geht es zu unserem Impressum, den Allgemeinen Geschäftsbedingungen, den Hinweisen zum Datenschutz und nutzungsbasierter Online-Werbung.