
DER IMMO TIP Vermittlung von Immobilien GmbH
Herr Michael Hoffmann
037 ···
Nr. anzeigenPreise & Kosten
Provision für Käufer
provisionsfrei
Lage
Neukieritzsch befindet sich im Leipziger Neuseenland und liegt damit vor den Toren von Leipzig in der Wachstumsregion von Sachsen mit der stärksten Entwicklung. Leipzig wächst rasant und hat jetzt mehr als 600.000 Einwohner.
Entfernungen:
Leipzig: ca. 20km
Autobahnkreuz A38/A72: ca. 15 km
A72: ca. 10km
Die Industriefläche
Kategorie
Lagerhalle
Baujahr
1995
Bezug
nach Vereinbarung
Energie & Heizung
Warum sehe ich diese Anzeige? – Du siehst diese Anzeige basierend auf Ihrer Navigation auf unserer Website und den Suchkriterien, die du verwendet hast.
Energieausweistyp
Verbrauchsausweis
Gebäudetyp
Nicht-Wohngebäude
Baujahr laut Energieausweis
1995
Gültigkeit
bis 30.09.2031
Endenergieverbrauch (Wärme)
66,20 kWh/(m²·a)
Weitere Energiedaten
Energieträger
Öl
Heizungsart
Fußbodenheizung, Zentralheizung
Details
Objektbeschreibung
Kurzbeschreibung
Logistik - und Gewerbeobjekt im Leipziger Neuseenland kaufen
Objekt
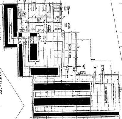
Das Gewerbeobjekt bestehend aus einer ca. 1000m² beheizten Halle mit Hochregallager (Höhe ca. 8 Meter) mit Kleinteilelager, Büro mit Fußbodenheizung und 2 vermieteten Wohnungen wurde 1995 erbaut. Das Grundstück ist befestigt und...
Preisinformation
Soll-Mieteinnahmen pro Jahr: 57.396,00 EUR
Ist-Mieteinnahmen pro Jahr: 8.004,00 EUR
Weitere Informationen
Sonstiges
Heizungsart: Öl-Heizung
Befeuerung/Energieträger: Öl
Baujahr: 1995
Energiekennwert: 66,2 kWh/(m²*a)
Energiekennwert Strom: 15 kWh/(m²*a)
Energieausweistyp: Verbrauchsausweis
Hinweis: Fehlende Angaben zum Energieausweis gemäß Energiesparverordnung 2014 ( EnEV ) begründen sich durch...
Anbieter der Immobilie
DER IMMO TIP Vermittlung von Immobilien GmbH
Semperstr. 1, 01069 Dresden
Online-ID: 2jgj45g
Referenznummer: 58166
Finde Angebote wie dieses
Hier geht es zu unserem Impressum, den Allgemeinen Geschäftsbedingungen, den Hinweisen zum Datenschutz und nutzungsbasierter Online-Werbung.