

Richardsen Immobilien-Vermietungen GmbH & Co KG
Herr Bahne Richardsen
046 ···
Nr. anzeigenPreise & Kosten
Provision für Käufer
3,57% inkl. der gesetzlichen MwSt.
Lage
Die Immobilie befindet sich in einem ruhigen Wohngebiet in Risum-Lindholm. Das Dorf Risum-Lindholm verfügt über zahlreiche Einkaufsmöglichkeiten, Ärzte, Kindergärten und Schulen. Der Zentralort Niebüll mit seiner attraktiven Innenstadt, Schulen, Krankenhaus und dem Bahnhof zur Insel Sylt ist schnell, auch per Rad zu...
Das Haus
Kategorie
Einfamilienhaus
Baujahr
1979
Energie & Heizung
Warum sehe ich diese Anzeige? – Du siehst diese Anzeige basierend auf Ihrer Navigation auf unserer Website und den Suchkriterien, die du verwendet hast.
Energieausweistyp
Bedarfsausweis
Gebäudetyp
Wohngebäude
Baujahr laut Energieausweis
1979
Wesentliche Energieträger
OEL
Gültigkeit
bis 02.08.2032
Effizienzklasse
D
Endenergiebedarf
128,00 kWh/(m²·a)
Weitere Energiedaten
Energieträger
Öl
Heizungsart
Zentralheizung
Details
Objektbeschreibung
Objekt-Nr. 100-133-3
Bauweise
Baujahr 1979, roter Vormauerziegel, Zweischaliges Mauerwerk, massive Bauweise, Dacheindeckung mit Pfannen als Satteldach, Holzbalkendecke, Fenster sind aus Kunststoff mit Isolierverglasung, Eingangstür der Erdgeschoss Wohneinheit ist aus Hartholz.
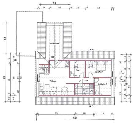
Dachdachgeschoss wurde im Jahr 2018...
Ausstattung
Besonderes
. Beide Wohneinheiten sind fest vermietet
. Netto-Kaltmiete: 19.200,00 € / p.a.
. Die Garage ist unterteilt in zwei Abstellräumen für die jeweiligen Mieter
. Jede Mietpartei hat einen eigenen separaten und ein-gezäunten Gartenanteil
Weitere Informationen
Sonstiges
Es liegt ein Energiebedarfsausweis vor.
Dieser ist gültig bis 2.8.2032.
Endenergiebedarf beträgt 128.00 kwh/(m²*a).
Wesentlicher Energieträger der Heizung ist Öl.
Das Baujahr des Objekts lt. Energieausweis ist 1979.
Die Energieeffizienzklasse ist...
Anbieter der Immobilie

Richardsen Immobilien-Vermietungen GmbH & Co KG
Alte Schulstr. 4, 25899 Niebüll

Online-ID: 2jh3a56
Referenznummer: 100-133-3
Finde Angebote wie dieses
Hier geht es zu unserem Impressum, den Allgemeinen Geschäftsbedingungen, den Hinweisen zum Datenschutz und nutzungsbasierter Online-Werbung.