Version: 8.24.0Navigation überspringen
Mietkosten auf Anfrage
3.589 m² Bürofläche  •  teilbar ab 260 m²
Immowelt logo

Büro zur Miete • provisionsfrei
Mietkosten auf Anfrage
3.589 m² Bürofläche  •  teilbar ab 260 m²

Repräsentatives Projekt - Palais am Zoo - 260 m² - 4.000 m²

Das Palais am Zoo vereint die Eleganz der Gründerzeit mit den Anforderungen der modernen Arbeitswelt. 1912 erbaut, besticht das Gebäude durch seine imposante historische Fassade und seine zentrale Lage mit Blick auf den Zoo im Stadtgarten. Die Kombination aus Tradition und exklusiver Lage machen das Palais am Zoo zu einem
besonders charmanten Bürostandort. Der Blick auf den Stadtgarten und den Zoo sorgt für eine angenehme Arbeitsatmosphäre, die sowohl Ruhe als auch kreative Impulse fördert. Mit direkter Anbindung an Fernverkehr und Stadtbahn sowie der Nähe zum Hauptbahnhof ist das Palais für Mitarbeiter als auch Besucher äußerst komfortabel und unkompliziert erreichbar ist.
Die Fassadenrestaurierung und die stilvolle Umgestaltung der Foyers bieten Raum für den optimalen Unternehmensempfang. Hier treffen Tradition und Innovation, Stil und Funktionalität aufeinander.
Individuelle Mieterausbauten garantieren, dass das Palais sowohl historisch beeindruckt als auch modernen Bürostandards entspricht. Für Unternehmen, die ein zukunftsorientiertes und repräsentatives Umfeld suchen, ist es ein einzigartiges Projekt in Karlsruhe, in dem Historie, Natur, modernes Design und innovative Arbeitskonzepte sowie eine ideale Infrastruktur aufeinandertreffen.

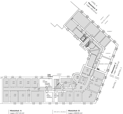
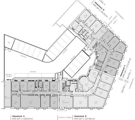
Grundrisse

Grundrisse
1 / 4

Realisiere Dein Projekt

Bausubstanz und Energie

Der Anbieter hat keine Informationen zu Energieverbrauch oder Zustand der Immobilie bereit gestellt.
Immowelt logo

Mietkosten

Miete auf Anfrage
Provision für Mieter
provisionsfrei
Kaution
keine Angabe

Lage

address-icon
SüdweststadtKarlsruhe (76137)
Der Anbieter hat die genaue Adresse nicht freigegeben
Mit ca. 305.000 Einwohnern ist Karlsruhe die zweitgrößte Stadt Baden-Württembergs. Verkehrsgünstig gelegen an wichtigen Autobahnen, insbesondere an der A5 (80 Kilometer südlich von Frankfurt am Main) und der A8 ( 70 Kilometer nördlich von Stuttgart). Diese Anbindungen machen die Stadt zu einem wichtigen Knotenpunkt im europäischen Verkehrsnetz. Karlsruhe ist ein hochentwickelter Wirtschaftsstandort mit einer starken Ausrichtung auf Technologie, Innovation und Forschung. Die Stadt bietet ein ideales Umfeld für Unternehmen, die in den Bereichen IT, Maschinenbau, Erneuerbare Energien, Automatisierungstechnik und Finanzen tätig sind. Die Stadt beherbergt unter anderem das Karlsruher Institut für Technologie (KIT), eine der führenden technischen Universitäten in Deutschland.

Weitere Informationen

Sonstiges Haben Sie ihre passende Bürofläche noch nicht gefunden ?
Nehmen Sie Kontakt mit unserem Vermietungsteam auf, um das passende Objekt für Sie zu finden.
**Die hier eingestellten Flächendefinitionen sind mit größter Sorgfalt recherchiert, erheben jedoch nicht den Anspruch auf Alleingültigkeit und werden lediglich unverbindlich zu Informationszwecken zur Verfügung gestellt. Bitte beachten Sie auch unsere rechtlichen Hinweise.

Weitere Services

Lust auf eine Besichtigung?
Eine Frage zur Immobilie?
Nachricht hinzufügen
Mit der Nutzung der oben angegebenen Telefonnummer oder durch Klicken auf „Kontaktieren“ akzeptierst Du die Allgemeinen Nutzungsbedingungen, denen Du jederzeit widersprechen kannst. Weitere Informationen zum Datenschutz

Über den Anbieter

Rotebühlplatz 17, 70178 Stuttgart
partner badge
Partnerschaft
Herr Manuel MackDein Kontakt
Online-ID: 2jhp753
Referenznummer: 453
INLEASE Real Estate Advisory GmbH
Nachricht hinzufügen
Mit der Nutzung der oben angegebenen Telefonnummer oder durch Klicken auf „Kontaktieren“ akzeptierst Du die Allgemeinen Nutzungsbedingungen, denen Du jederzeit widersprechen kannst. Weitere Informationen zum Datenschutz
Wie zufrieden bist du mit dieser Seite (nicht mit der Immobilie selbst)?