

Scheib Immobilien GmbH
Herr Dominik Wild
079 ···
Nr. anzeigenPreise & Kosten
Provision für Käufer
3,57 % inkl. MwSt.
Lage
Crailsheim ist eine aufstrebende Stadt mit einer starken wirtschaftlichen Basis und einer hervorragenden Anbindung an die Verkehrsinfrastruktur. Hier profitieren Sie von einer stabilen Nachfrage nach Büroflächen.
Crailsheim ist als Große Kreisstadt drittgrößte Stadt des Landkreises Schwäbisch Hall und liegt im...
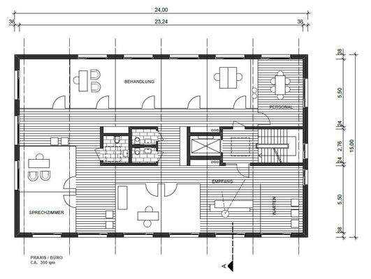
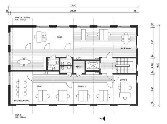
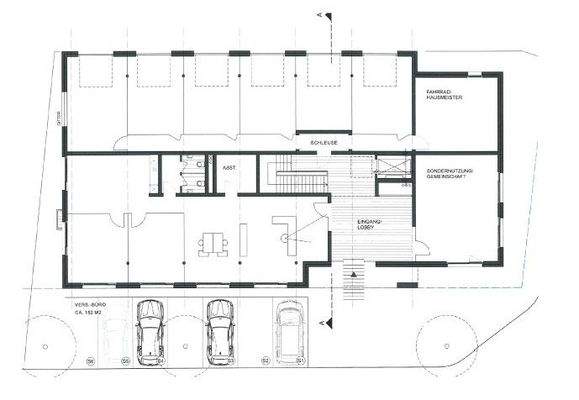
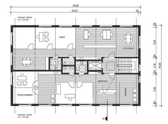
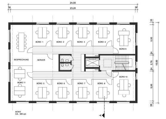
Büro-/Praxisfläche
Kategorie
Bürogebäude
Bezug
nach Absprache
Details
Objektbeschreibung
Wir präsentieren Ihnen einen geplanten, nachhaltigen Neubau (QNG) eines 5-Geschosse-Bürohauses in Crailsheim, das durch seine innovative Bauweise und die neuen degressiven Abschreibungsregelungen besonders für Investoren interessant ist.
Hier haben Sie die Möglichkeit, in ein Effizienzbauprojekt zu investieren, das nicht...
Ausstattung
Effizienzhaus 55 mit mineralischer Fassadendämmung:
- barrierefreier Zugang
- 3-fach verglaste Fenster
- WC Anlagen mit Keramikserie von Markenherstellern
- Fußbodenheizung mit hochwertigen Grossformatfliesen
- elektrische Raffstore
- Lüftungsanlage
- Klimaanlage
- erhöhter Schallschutz
- helles...
Preisinformation
60 Stellplätze
Weitere Informationen
Sonstiges
Sollte aufgrund unserer Nachweis- bzw. Vermittlungstätigkeit ein notarieller Kaufvertrag zustande kommen, berechnen wir Ihnen eine Courtage in Höhe von 3 % zzgl. Mehrwertsteuer vom verbrieften Kaufpreis.
Die Scheib Immobilien GmbH vermarktet ausschließlich Gewerbeimmobilien (z. B. Produktions- und...
Anbieter der Immobilie

Online-ID: 2jj4b5e
Referenznummer: 5147
Finde Angebote wie dieses
Hier geht es zu unserem Impressum, den Allgemeinen Geschäftsbedingungen, den Hinweisen zum Datenschutz und nutzungsbasierter Online-Werbung.