




Praxisfläche zur Miete6,90 €/m²12.500 m² Bürofläche • teilbar ab 850 m²
6,90 €
/m²
12.500 m² Bürofläche • teilbar ab 850 m²
Büroflächen in einem Gewerbeanwesen im Westen Nürnbergs
Merkmale
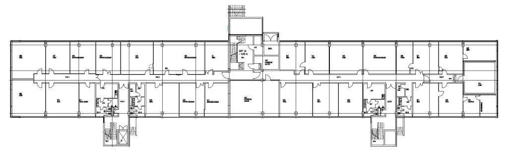
Grundrisse
Grundrisse
1 / 5
Realisiere Dein Projekt
Bausubstanz und Energie
Energieausweis
Endenergiebedarf (Wärme)
Endenergiebedarf (Strom)
- EnergieträgerÖl
Mietkosten
Monatliche Miete
6,90 €/m²
Provision fĂĽr Mieter
Provisionspflichtig
Kaution
keine Angabe
Lage

Leyh, Nürnberg (90431)
Der Anbieter hat die genaue Adresse nicht freigegeben
Weitere Informationen
Weitere Services
Lust auf eine Besichtigung?
Eine Frage zur Immobilie?
Ăśber den Anbieter
KĂĽspert & KĂĽspert ImmobilienberatungMaklerbĂĽro
Nordostpark 16, 90411 NĂĽrnberg
Partnerschaft

Frau Luisa Zaha KrutzkiDein Kontakt
Online-ID: 2jj4t5e
Referenznummer: P0009/9999
Wie zufrieden bist du mit dieser Seite (nicht mit der Immobilie selbst)?




