

Wohnung zum Kauf230000 €1.704 €/m²4 Zimmer • 135 m² • 2. Geschoss • frei ab sofort
230000 €
1.704 €/m²
4 Zimmer • 135 m² • 2. Geschoss • frei ab sofort
Vier Lokal Wohnung
Merkmale
- Haustiere erlaubt
- möbliert
- Dachgeschoss, 2. Geschoss
- Badezimmer: Bad mit Dusche, Bad mit Fenster
- Bidet
- Balkon
- Terrasse
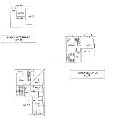
Grundrisse
Grundrisse
1 / 1
Virtueller Rundgang
Realisiere Dein Projekt
Bausubstanz und Energie
Möchtest du Details zum Energieverbrauch?

- Baujahr1800
- Zustand der ImmobilieAltbau (bis 1945)
- EnergieträgerElektro, Gas
Preisdetails
Kaufpreis
230000 €
1.703,70 €/m²
Provision für Käufer
4%
Lage

Via Carona, Branzi
Weitere Informationen
Weitere Services
Lust auf eine Besichtigung?
Eine Frage zur Immobilie?
Online-ID: 25H74AZEIPTB
Referenznummer: 33091035-31


Edilfin
Bewertung: 5 von 5 Sternen
Wie zufrieden bist du mit dieser Seite (nicht mit der Immobilie selbst)?

