
Deutsche Bank Immobilien GmbH
Frau Laura Brosius
036 ···
Nr. anzeigenPreise & Kosten
Provision für Käufer
3,57 % inkl. MwSt.
Lage
Die Längwitzer Straße befindet sich im südlichen Teil von Arnstadt, einer der ältesten Städte Thüringens. Diese Lage bietet eine harmonische Mischung aus Wohn- und Gewerbegebieten, die sowohl Ruhe als auch eine gute Anbindung an die städtische Infrastruktur gewährleisten.
Verkehrsanbindung:
Die Längwitzer Straße...
Das Haus
Kategorie
Reihenmittelhaus
Baujahr
1900
Bezug
sofort
Energie & Heizung
Warum sehe ich diese Anzeige? – Du siehst diese Anzeige basierend auf Ihrer Navigation auf unserer Website und den Suchkriterien, die du verwendet hast.
Energieausweis: für diesen Gebäudetyp nicht notwendig
Weitere Energiedaten
Haustyp
Holzhaus
Heizungsart
Ofen
Details
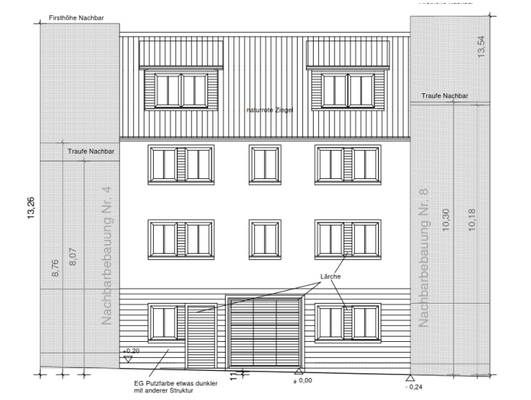
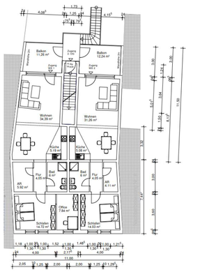
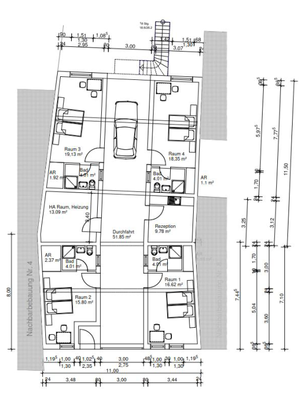
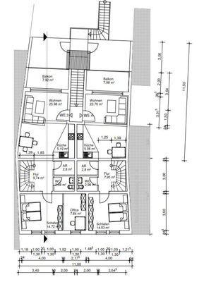
Objektbeschreibung
Grundstück mit genehmigtem Bauprojekt für Wohn- und Pensionsnutzung
Objektart: Abrissobjekt mit Neubaugenehmigung
Lage: Innenstadt von Arnstadt, nur ca. 400 m vom Rathaus entfernt
Grundstücksgröße: 378 m²
Bestehendes Gebäude:
Reihenmittelhaus, Baujahr ca. 1900
Fachwerkhaus unter Denkmalschutz
2...
Weitere Informationen
Sonstiges
Sie brauchen noch eine schicke Einbauküche? Jetzt attraktive Finanzierungskonditionen sichern!
Die Spezialisten der Deutschen Bank Finanzberatung erstellen Ihnen gern ein maßgeschneidertes Angebot. Sprechen Sie uns an.
Alle Angaben basieren auf Auskunft unserer Auftraggeber.
Haftungsausschluss: Trotz...
Anbieter der Immobilie
Deutsche Bank Immobilien GmbH
Nollendorfer Straße 2, 07743 Jena
Online-ID: 2jjd858
Referenznummer: 43170109-090205
Finde Angebote wie dieses
Hier geht es zu unserem Impressum, den Allgemeinen Geschäftsbedingungen, den Hinweisen zum Datenschutz und nutzungsbasierter Online-Werbung.