

Immobilien Gallery GmbH
Herr Yashar Chinahkash
023 ···
Nr. anzeigenPreise & Kosten
Provision für Käufer
5,95% inkl. MwSt.
Lage
Das Mehrfamilienhaus befindet sich in einem ruhigen und grünen Stadtteil von Herne. Der Stadtteil zeichnet sich durch seine gute Infrastruktur aus, mit Geschäften, Restaurants und Schulen in unmittelbarer Nähe. Trotz der zentralen Lage ist es hier angenehm ruhig und ideal für Familien.
Das Renditeobjekt
Kategorie
Mehrfamilienhaus
Baujahr
1970
Bezug
sofort
Frei ab
vermietet
Energie & Heizung
Warum sehe ich diese Anzeige? – Du siehst diese Anzeige basierend auf Ihrer Navigation auf unserer Website und den Suchkriterien, die du verwendet hast.
Energieausweistyp
Verbrauchsausweis
Gebäudetyp
Wohngebäude
Baujahr laut Energieausweis
1970
Wesentliche Energieträger
Gas
Gültigkeit
16.04.2024 bis 15.04.2034
Effizienzklasse
D
Endenergieverbrauch
106,80 kWh/(m²·a)
Weitere Energiedaten
Energieträger
Gas
Details
Objektbeschreibung
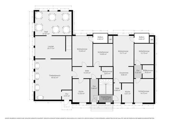
Das im Jahr 1970 erbaute, voll unterkellerte Mehrfamilienhaus bietet eine großzügige vermietbare Fläche von insgesamt 917 m², die sich auf 817 m² Wohnfläche sowie 100 m² Gewerbefläche verteilt. Die Immobilie umfasst 11 großzügige 3,5-Zimmer-Wohnungen, alle mit Balkon, sowie eine Gastronomieeinheit im Erdgeschoss. Darüber...
Ausstattung
Bei Interesse gehen Sie wie folgt vor:
- Stellen Sie eine Online-Anfrage, damit Sie unser vollständiges Exposé erhalten.
- Öffnen Sie das interaktive Exposé (enthält alle relevanten Unterlagen und Informationen)
Preisinformation
5 Stellplätze
10 Garagenstellplätze
Soll-Mieteinnahmen pro Jahr: 84.000,00 EUR
Ist-Mieteinnahmen pro Jahr: 87.500,00 EUR
Weitere Informationen
Stichworte
Stellplatz vorhanden, Wohnfläche: 817,00 m², Nutzfläche: 443,00 m², Gesamtfläche: 1.360,00 m², vermietbare Fläche: 917,00 m², Kellerfläche: 200,00 m², Dachbodenfläche: 245,00 m², Anzahl der Wohneinheiten: 11, Anzahl der Gewerbeeinheiten: 1, 3 Etagen
Anbieter der Immobilie
Immobilien Gallery GmbH
Brückstraße 48, 44787 Bochum

Online-ID: 2jjxb5q
Referenznummer: 1004358#vubm1
Finde Angebote wie dieses
Hier geht es zu unserem Impressum, den Allgemeinen Geschäftsbedingungen, den Hinweisen zum Datenschutz und nutzungsbasierter Online-Werbung.