Prof. Schuh Securities GmbH

Herr/Frau Temba Schuh

Großzügige 3-R-Whg. in der großen Scheune im Rittergut Kanena

€ 1.333,78
Kaltmiete zzgl. NK
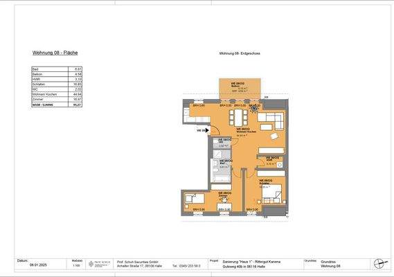
95,27 m²
Wohnfläche ca.
3
Zimmer

Der Anbieter dieses Objekts hat gegenüber der AVIV Germany GmbH als Betreiber dieses Online-Marktplatzes erklärt, nicht als Unternehmer im Sinne des § 1 KSchG zu handeln. Die im Verbraucherschutzrecht der Union verankerten Verbraucherrechte (insbesondere Informationspflichten und Rücktritts- bzw. Widerrufsrechte) finden auf den Vertrag zwischen dem Anbieter des Objekts und Ihnen (dem Interessenten) keine Anwendung.

Gewerblicher Anbieter

Der Anbieter dieses Objekts hat gegenüber der AVIV Germany GmbH als Betreiber dieses Online-Marktplatzes erklärt, als Unternehmer im Sinne des § 1 KSchG zu handeln.

AdresseGutsweg 40b
06116 Halle (Saale) 
(Kanena-Bruckdorf)
Auf Karte ansehen

Preise & Kosten

Kaltmiete € 1.333,78 Nebenkosten € 285,81 Warmmiete € 1.619,59 2 Stellplätze, je € 60

Lage

Das Gut befindet sich östlich von Halle im OT Kanena nördlich der B 6. In unmittelbarer Nähe befindet sich der Hufeisensee mit Golfplatz und das Friedrichsbad, wo u.a. zahlreiche Freizeitangebote bestehen.

Die idyllische Lage des Rittergutes wird durch die angrenzende Grünfläche im Landschaftsschutzgebiete von Kanena...

Mehr anzeigen

Die Wohnung

Bezug

01.04.2026

  • Bad mit Wanne und Dusche, Gäste-WC
  • Balkon
  • offene Küche
  • Böden: Parkett

Wohnanlage

  • Baujahr: 1700
  • 2 Stellplätze

Energie & Heizung

Weitere Energiedaten

Energieträger

Pellets

Heizungsart

Fußbodenheizung

Details

Objektbeschreibung

Das Rittergut Kanena stellt einen denkmalgeschützten Baubestand dar. Es handelt sich bei dem Areal um 5 Denkmäler, welche als Vierseitenhof angeordnet sind.

Ausstattung

Das Haus 1 - Große Scheune erhält eine teilweise Pfosten-Riegel-Fassade.

Die Wohnung befindet sich im OG und hat einen großen Wohn-Koch-Bereich mit Austritt auf den Balkon, welche nach Westen ausgerichtet ist. Weiterhin verfügt die WE über 2 weitere Zimmer, ein Bad mit Dusche und Wanne sowie ein Gäste-WC und einen...

Mehr anzeigen

Weitere Informationen

Stichworte
Zustand: Erstbezug, saniert

Dokumente

file_pdfGrundriss Haus 1 WE 08angle_rightfile_pdfGrundriss Haus 1 gesamt OGangle_right

Anbieter der Immobilie

Partner

Prof. Schuh Securities GmbH

im Durchschnitt  5,00  Sterne
(bei 2 Bewertungen)

Anhalter Str. 12, 06108 Halle

user

Herr/Frau Temba Schuh

Dein Ansprechpartner

Anbieter-Website Anbieter-Impressum

Online-ID: 2jk8a55

Referenznummer: Kanena H1 WE08

Finde Angebote wie dieses

imageimageimage

Hier geht es zu unserem Impressum, den Allgemeinen Geschäftsbedingungen, den Hinweisen zum Datenschutz und nutzungsbasierter Online-Werbung.