
Baugemeinschaft Nestbau3 eGbR
Herr Martin Schurr
070 ···
Nr. anzeigenDieses Angebot ist Teil des Neubauprojekts
Baugemeinschaft Nestbau³ Mitte eGbR in Freiburg
Preise & Kosten
Provision für Käufer
provisionsfrei
Lage
Auf dem rund 39 Hektar großen Areal des Güterbahnhof Nord in Freiburg entsteht ein neues Quartier zum Wohnen und Arbeiten.
Das von Nestbau³ zu bebauende Areal liegt zentrumsnah, nördlich der Freiburger Altstadt.
Bus- und Straßenbahnhaltestellen sind in unmittelbarer Nähe und der Freiburger Hauptbahnhof ist in...
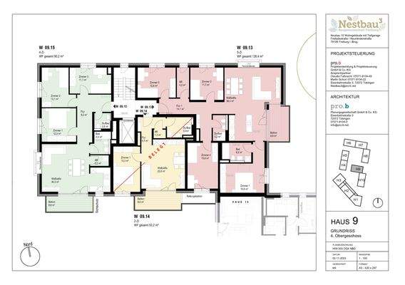
Die Wohnung
Wohnungslage
4. Geschoss (Dachgeschoss)
Bezug
Herbst 2027
Derzeitige Nutzung
frei
Wohnanlage
Das Neubauprojekt
Energie & Heizung
Warum sehe ich diese Anzeige? – Du siehst diese Anzeige basierend auf Ihrer Navigation auf unserer Website und den Suchkriterien, die du verwendet hast.
Energieausweistyp
Bedarfsausweis
Gebäudetyp
Wohngebäude
Effizienzklasse
A
Endenergiebedarf
37,00 kWh/(m²·a)
Weitere Energiedaten
Energieträger
Fernwärme, Solar
Haustyp
KfW 40
Heizungsart
Fußbodenheizung, Zentralheizung
Details
Objektbeschreibung
GEMEINSCHAFTLICH BAUEN UND WOHNEN ZUM SELBSTKOSTENPREIS = OHNE PROVISION
Mit den Baugemeinschaftsprojekten Nestbau³ entwickelt und baut pro.b in Freiburg weitere familienfreundliche, generationenübergreifende Baugemeinschaftsprojekte.
In 4 Bauabschnitten entstehen 230 Wohnungen in 10 Häusern, die sich um zwei...
Ausstattung
-ca. 90,2 m² Wohnung mit Balkon in Süd-Ausrichtung
-Großzügiger Wohnbereich,
-lichte Raumhöhe ca. 2,62m
-Hochwertige Eichenparkettböden
-Ein modern ausgestattetes Bad mit Badewanne und WC sowie separates Duschbad mit WC
-Abstellraum mit Waschmaschinenanschluss
-Fußbodenheizung mit raumweiser...
Weitere Informationen
Sonstiges
Bei diesem Projekt handelt es sich um ein Baugemeinschaftsprojekt. D.h. Sie werden hier selbst zur Bauherrschaft und können - basierend auf dem zu Grunde gelegten Standard – den Grundriss, den individuellen Ausbau Ihrer Wohnung und die Gestaltung der Außenanlagen mitbestimmen.
Das zentrale Element im...
Dokumente
Anbieter der Immobilie
Baugemeinschaft Nestbau3 eGbR
Eisenbahnstraße 3, 72072 Tübingen
Online-ID: 2jkfd53
Referenznummer: WE 9.15
Finde Angebote wie dieses
Hier geht es zu unserem Impressum, den Allgemeinen Geschäftsbedingungen, den Hinweisen zum Datenschutz und nutzungsbasierter Online-Werbung.