

Sirius Facilities GmbH
Herr Felix Meier
080 ···
Nr. anzeigenPreise & Kosten
Kaution
3 Bruttowarmmieten
Provision für Mieter
Die Vermietung erfolgt provisionsfrei!
Warum sehe ich diese Anzeige? – Du siehst diese Anzeige basierend auf Ihrer Navigation auf unserer Website und den Suchkriterien, die du verwendet hast.
Lage
Die zentrale Lage in Rastatt erleichtert die Anreise erheblich. Für die Nutzung öffentlicher Verkehrsmittel befindet sich die Bushaltestelle Niederwaldstr. der Linie 232 direkt in der Nähe des Gewerbeparks. Mit dem Auto erreichen Sie uns schnell über die Autobahn A5 oder die Bundesstraße B36. Auf unserem Gelände bieten wir...
Büro-/Praxisfläche
Kategorie
Bürofläche
Energie & Heizung
Warum sehe ich diese Anzeige? – Du siehst diese Anzeige basierend auf Ihrer Navigation auf unserer Website und den Suchkriterien, die du verwendet hast.
Weitere Energiedaten
Heizungsart
Zentralheizung
Details
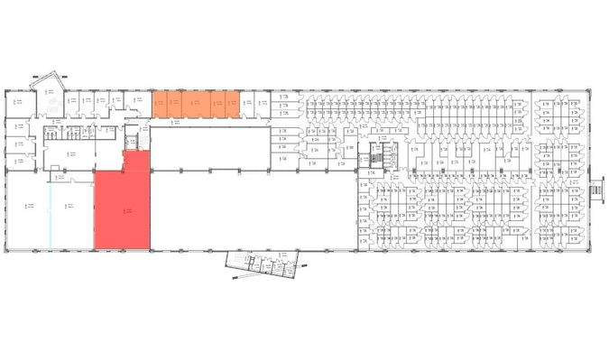
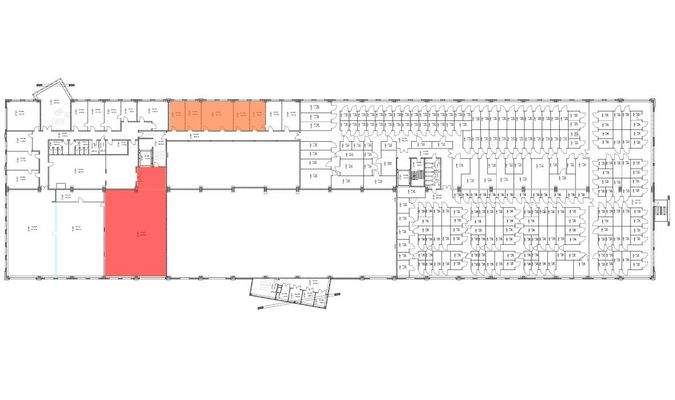
Objektbeschreibung
Im Sirius Business Park Rastatt bieten wir Ihnen eine Vielzahl an Gewerbeimmobilien: die Auswahl umfasst moderne Büros, geräumige Lagerflächen und Produktionshallen, alle in einer vorteilhaften Lage und zu besonders günstigen Mietpreisen.
Wenn Sie ein modernes Büro suchen, bieten wir sowohl große Flächen ab 1.000 m²...
Ausstattung
. Gesamtfläche: 400,27 m² im 2. OG (HNF: 327,28 m²)
. Ausstattung: Lastenaufzug, Rolltor, Zentralheizung, möblierbar
. Technik: Datenverkabelung (CAT), ISDN, DSL
. Service: Sicherheitsdienst/Wachdienst
. Parken: Mietbare Stellplätze verfügbar
. Mietpreis: Ab 7,90 EUR/m² (zzgl. Nebenkosten & MwSt.)
...
Weitere Informationen
Sonstiges
*Das Angebot gilt für Neukundenverträge über Büros, die bis zum 16.03.26 unterzeichnet werden, und ist nicht kombinierbar mit anderen Rabatten und Aktionen. Die mietfreie Zeit wird ab 12 Monaten Laufzeit im 12. Monat, ab 24 Monaten im 12. und 24. Monat gewährt. Das Angebot bezieht sich auf die Nettokaltmiete...
Dokumente
Anbieter der Immobilie

Online-ID: 2jkgp5q
Referenznummer: A11053A
Finde Angebote wie dieses
Hier geht es zu unserem Impressum, den Allgemeinen Geschäftsbedingungen, den Hinweisen zum Datenschutz und nutzungsbasierter Online-Werbung.