Schwabenhaus Hof - Frank Wunderlich - HV für die Schwabenhaus GmbH

Frank Wunderlich

Die Steinzeit ist vorbei! Energieeffizient Bauen.

€ 396.282
Kaufpreis
125 m²
Wohnfläche ca.
4
Zimmer
550 m²
Grundstücksfl. ca.

Der Anbieter dieses Objekts hat gegenüber der AVIV Germany GmbH als Betreiber dieses Online-Marktplatzes erklärt, nicht als Unternehmer im Sinne des § 1 KSchG zu handeln. Die im Verbraucherschutzrecht der Union verankerten Verbraucherrechte (insbesondere Informationspflichten und Rücktritts- bzw. Widerrufsrechte) finden auf den Vertrag zwischen dem Anbieter des Objekts und Ihnen (dem Interessenten) keine Anwendung.

Provisionsfrei
Gewerblicher Anbieter

Der Anbieter dieses Objekts hat gegenüber der AVIV Germany GmbH als Betreiber dieses Online-Marktplatzes erklärt, als Unternehmer im Sinne des § 1 KSchG zu handeln.

AdresseStraße nicht freigegeben
95030 Hof 
(Innenstadt)
Auf Karte ansehen

Preise & Kosten

Kaufpreis € 396.282

Provision für Käufer

provisionsfrei

Lage

Das Grundstück liegt in der Nähe von Hof und bietet eine umfangreiche Infrastruktur mit Metzger,ei Bäcker, Waren des täglichen Bedarfs, Friseur, und Ärzten. Kita, Grund- und Hauptschule, Kindergarten befinden sich ebenfalls in der Nähe. Die umliegende Natur bietet zahlreiche Rad- und Wanderwege. Die nahe gelegene Stadt Hof...

Mehr anzeigen

Das Haus

Kategorie

Einfamilienhaus

  • Zustand: Neubau, projektiert
  • Gäste-WC

Energie & Heizung

Weitere Energiedaten

Heizungsart

Fußbodenheizung

Details

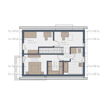
Objektbeschreibung

Herzlich willkommen in Ihrem neuen Zuhause, das speziell für Familien und herzliche Menschen gestaltet wurde! Dieses großzügige Haus bietet nicht nur ausreichend Platz für Ihre Lieben, sondern auch eine warme und einladende Atmosphäre.

Im Erdgeschoss erwartet Sie ein geräumiges Wohnzimmer mit großen Fenstern, die viel...

Mehr anzeigen

Ausstattung

Jedes unserer energieeffizienten Fertighäuser wird speziell für Sie geplant und ist perfekt auf die Anforderungen und Vorgaben Ihres Bauvorhabens angepasst - Bebauungspläne, eine besondere Grundstückslage und die gewünschten Eigenleistungen werden im Detail geprüft und berücksichtigt.

Dieses Schwabenhaus verfügt...

Mehr anzeigen

Weitere Informationen

Sonstiges
Das Haus ist projektiert inkl. Grundstück. Das Grundstück wird in Kommission angeboten bzw. direkt von Dritten verkauft. Daher kann der o.g. Preis aufgrund aktueller Marktsituationen schwanken.

Die Bauabwicklung kann kurzfristig nach Grundstückserwerb begonnen werden. Bilder zeigen möglicherweise...

Mehr anzeigen

Anbieter der Immobilie

Partner
user

Frank Wunderlich

Dein Ansprechpartner

Anbieter-Website Anbieter-Profil Anbieter-Impressum

Online-ID: 2jks65y

Referenznummer: SH-326657

Finde Angebote wie dieses

imageimageimage

Hier geht es zu unserem Impressum, den Allgemeinen Geschäftsbedingungen, den Hinweisen zum Datenschutz und nutzungsbasierter Online-Werbung.