

LBS Immobilien GmbH
Frau Andrea Reinert-Clemens
068 ···
Nr. anzeigenPreise & Kosten
Provision für Käufer
provisionsfrei
Lage
Das Gebäude befindet sich in der Dürerstraße im Merziger Ortsteil Brotdorf.
Geschäfte zur Nahversorgung, Ärzte, eine Apotheke und ein Kindergarten befinden sich im Ortskern bzw. in unmittelbarer Nähe (Rewe-Supermarkt).
Die nur wenige Minuten entfernte Kreisstadt Merzig verfügt über eine hervorragende...
Die Wohnung
Wohnungslage
Erdgeschoss
Wohnanlage
Energie & Heizung
Warum sehe ich diese Anzeige? – Du siehst diese Anzeige basierend auf Ihrer Navigation auf unserer Website und den Suchkriterien, die du verwendet hast.
Energieausweis: für diesen Gebäudetyp nicht notwendig
Weitere Energiedaten
Energieträger
Elektro
Haustyp
KfW 55
Heizungsart
Fußbodenheizung, Zentralheizung
Details
Objektbeschreibung
Herzlich Willkommen in Brotdorf, dem (nach der Kernstadt) größten Stadtteil von Merzig,
wir freuen uns, Ihnen ein fantastisch gelegenes Mehrfamilienhaus mitten in einem ruhigen Wohngebiet am Ortsrand anbieten zu dürfen.
In diesem projektierten Neubau entstehen 4 Wohnungen mit Größen zwischen 60 und 90 m²...
Ausstattung
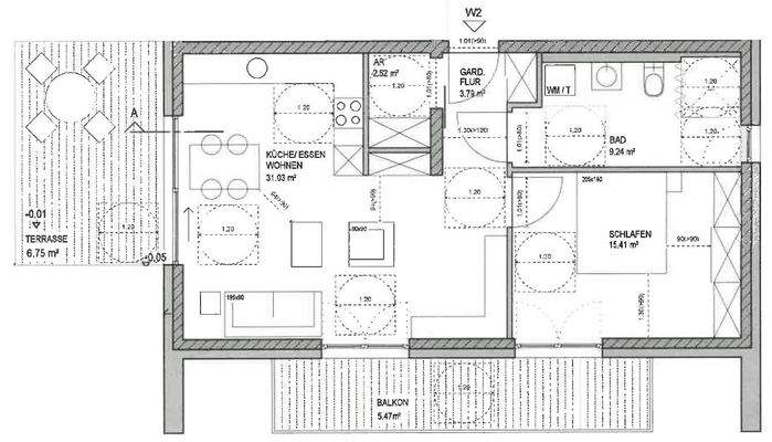
Wohnung im Erdgeschoss mit 74 m² Wohnfläche bestehend aus:
- großem Wohn- und Esszimmer
- offener Küche
- separatem Schlafzimmer
- hellem Tageslichtbad
- praktischem Abstellraum
- Terrasse
- Balkon
- zusätzlicher Abstellraum im Untergeschoss
- gemeinschaftlich zu nutzende Räume...
Weitere Informationen
Stichworte
Nutzfläche: 2,00 m², Anzahl der Schlafzimmer: 1, Anzahl der Badezimmer: 1, Anzahl Balkone: 1, Anzahl Terrassen: 1, Balkon-Terrassen-Fläche: 24,00 m², Bundesland: Saarland, 3 Etagen
Sonstiges: EDV-Verkabelung
Dokumente
Anbieter der Immobilie
LBS Immobilien GmbH
Beethovenstraße 35-39, 66111 Saarbrücken

Online-ID: 2jkyd5a
Referenznummer: 2025-PM-00153-2
Finde Angebote wie dieses
Hier geht es zu unserem Impressum, den Allgemeinen Geschäftsbedingungen, den Hinweisen zum Datenschutz und nutzungsbasierter Online-Werbung.