

HBI - Bergmann Immobilien
Herr René Bergmann
+49 ···
Nr. anzeigenPreise & Kosten
Provision für Käufer
3,57% inkl. MwSt.
Käufer und Verkäufer zahlen jeweils eine Maklerprovision in Höhe von 3,57% inkl. der gesetzlichen Mehrwertsteuer an die Firma Bergmann Immobilien. Die Provision errechnet sich aus dem Exposépreis und ist fällig am Tag der Beurkundung
Lage
Oranienburg ist eine Stadt mit rund 50.000 Einwohnern im Norden Brandenburgs. Sie liegt im Berliner Ballungsraum, ist Kreisstadt des Landkreises Oberhavel und große kreisangehörige Stadt, hat den Status eines Mittelzentrums und ist nach ihrer Einwohnerzahl die fünftgrößte Stadt Brandenburgs.
In Oranienburg steht das...
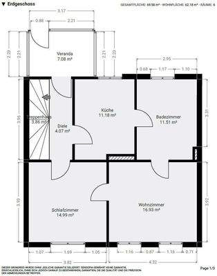
Das Haus
Kategorie
Doppelhaushälfte
Baujahr
1926
Bezug
sofort verfügbar
Energie & Heizung
Warum sehe ich diese Anzeige? – Du siehst diese Anzeige basierend auf Ihrer Navigation auf unserer Website und den Suchkriterien, die du verwendet hast.
Energieausweistyp
Bedarfsausweis
Gebäudetyp
Wohngebäude
Gültigkeit
bis 24.04.2035
Effizienzklasse
H
Endenergiebedarf
297,91 kWh/(m²·a)
Details
Objektbeschreibung
Diese charmante Doppelhaushälfte wurde im Jahr 1926 errichtet und befindet sich auf einem großzügigen, 1.544 Quadratmeter großen Grundstück. Mit einer Wohnfläche von rund 120 Quadratmetern, verteilt auf zwei Etagen, bietet das Haus insgesamt vier Zimmer und ausreichend Platz für eine Familie oder für Menschen, die Wohnen und...
Ausstattung
Einfamilienhaus inkl. Vollkeller und ausausgebautes Dachgeschoss
. Baujahr ca. 1926
. Massivbauweise
. Putzaußenfassade
. Dachziegeleindeckung
. Holzfenster mit Doppelverglasung
. Kunststofffenster im Schlafzimmer Erdgeschoss
. teilweise Rollläden
. Holztreppen in alle Geschosse
. Heizungsart...
Preisinformation
Ist-Mieteinnahmen pro Jahr: 21.960,00 EUR
Weitere Informationen
Erschließung
Öffentliches Abwasser und Strom sind angeschlossen und bezahlt laut Aussage des Eigentümers. DSL ist verfügbar laut Aussage des Internetprovider. Öffentliches Wasser und Gas liegen Straßenseitig an.
Anbieter der Immobilie

Online-ID: 2jl975z
Referenznummer: 1986
Finde Angebote wie dieses
Hier geht es zu unserem Impressum, den Allgemeinen Geschäftsbedingungen, den Hinweisen zum Datenschutz und nutzungsbasierter Online-Werbung.