
IMMORath
Herr Nicola Sabatino
004 ···
Nr. anzeigenPreise & Kosten
Provision für Käufer
3,57% inkl. MwSt.
Lage
Die Maisonette-Wohnung befindet sich in der charmanten südlichen Stadt Ettenheim, die Teil der wunderschönen Ortenau ist. Ettenheim zeichnet sich durch seine malerischen Gässchen und bezaubernden Fachwerkhäuser aus, was der Stadt ein einzigartiges und historisches Flair verleiht. Die Umgebung ist ideal für Familien, da sie...
Die Wohnung
Kategorie
Maisonette
Bezug
Frei nach Absprache
Wohnanlage
Energie & Heizung
Warum sehe ich diese Anzeige? – Du siehst diese Anzeige basierend auf Ihrer Navigation auf unserer Website und den Suchkriterien, die du verwendet hast.
Energieausweistyp
Bedarfsausweis
Gebäudetyp
Wohngebäude
Baujahr laut Energieausweis
1900
Wesentliche Energieträger
PELLET
Gültigkeit
bis 19.12.2034
Effizienzklasse
G
Endenergiebedarf
221,30 kWh/(m²·a)
Weitere Energiedaten
Energieträger
Pellets
Heizungsart
Zentralheizung
Details
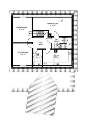
Objektbeschreibung
- Großzügige 5-Zimmer-Maisonettewohnung im Rohbauzustand, ideal für individuelle Gestaltung
- Attraktive Lage in Ettenheim-Münchweier, im Obergeschoss eines Mehrfamilienhauses mit drei Einheiten
- Voraussichtlich ca. 100 m² Wohnfläche bieten ausreichend Platz zur Verwirklichung Ihrer Wohnträume
- Profitieren Sie von...
Weitere Informationen
Stichworte
Distanz zum Kindergarten: 0.45, Distanz zur Grundschule: 0.45, Distanz zur Realschule: 4.00, Distanz zum Gymnasium: 3.80, Distanz zur Autobahn: 12.40, Distanz vom Zentrum: 3.70
Anbieter der Immobilie
Online-ID: 2jlhj5z
Referenznummer: IR0425320
Finde Angebote wie dieses
Hier geht es zu unserem Impressum, den Allgemeinen Geschäftsbedingungen, den Hinweisen zum Datenschutz und nutzungsbasierter Online-Werbung.