
EURAG GmbH
Herr Klaus Berg
091 ···
Nr. anzeigenPreise & Kosten
Provision für Käufer
3,57% Maklercourtage vom Kaufpreis
Lage
Zentrale Lage mitten in der Nürnberger Altstadt - nur wenige Gehminuten vom Hauptmarkt und der Nürnberger Burg entfernt.
Durch die absolute Innenstadtlage in der Nürnberger Altstadt werden alle Bedürfnisse des alltäglichen Lebens wie Einkaufsmöglichkeiten etc. innerhalb weniger Gehminuten mehr als erfüllt...
Das Renditeobjekt
Kategorie
Mehrfamilienhaus
Baujahr
1956
Details
Objektbeschreibung
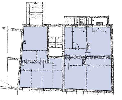
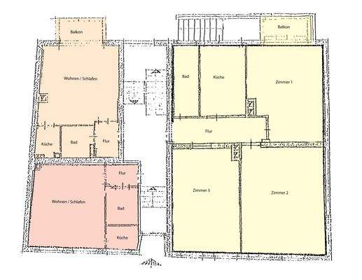
Das Objekt befindet sich in absoluter Innenstadtlage und besteht aus zwei Gebäudeteilen, die über das Treppenhaus miteinander verbunden sind.
Das Gebäude verfügt über einen Innenhof in dem 5 Parkplätze vorhanden sind, die zu dem Anwesen gehören. Weitere 2 Parkplätze befinden sich an der Straße
Geschosse: Keller...
Weitere Informationen
Provision
3,57% Maklercourtage vom Kaufpreis
Anbieter der Immobilie
EURAG GmbH
Fichtestr. 26, 90489 Nürnberg
Online-ID: 2jlhy5w
Referenznummer: 5395
Finde Angebote wie dieses
Hier geht es zu unserem Impressum, den Allgemeinen Geschäftsbedingungen, den Hinweisen zum Datenschutz und nutzungsbasierter Online-Werbung.