

Landhaus zum Kauf2700000 €9.000 €/m²5 Zimmer • 300 m² • 130.000 m² Grundstück
2700000 €
9.000 €/m²
5 Zimmer • 300 m² • 130.000 m² Grundstück
Finca-Projekt in traumhafter Hügellandschaft mit Bergblick bei Alaró
Merkmale
- 130.000 m² Grundstück
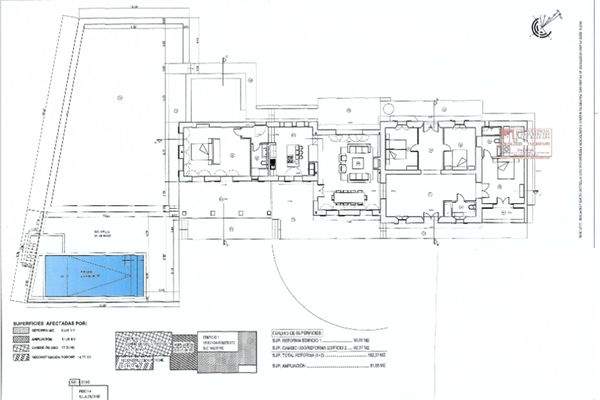
Grundrisse
Grundrisse
1 / 2
Realisiere Dein Projekt
Bausubstanz und Energie
Möchtest du Details zum Energieverbrauch?

- Zustand der ImmobilieProjektiert
Preisdetails
Kaufpreis
2700000 €
9.000 €/m²
Provision für Käufer
Bitte beachte, das Angebot kann bei Vertragsabschluss die Zahlung einer Provision beinhalten. Weitere Informationen erhältst Du vom Anbieter.
Lage

Alaro (07340)
Der Anbieter hat die genaue Adresse nicht freigegeben
Weitere Informationen
Weitere Services
Lust auf eine Besichtigung?
Eine Frage zur Immobilie?
Über den Anbieter
Theresienstr. 81, 80333 München
Partnerschaft

Firma Porta Mallorquina a brand of Homes & HolidayDein Kontakt
Online-ID: 25EYEYPRA6S3
Referenznummer: MAL-121447


Homes & Holiday AG
Wie zufrieden bist du mit dieser Seite (nicht mit der Immobilie selbst)?

