
Antaris Immobilien GmbH
Frau Sandy Thorwirth
+49 ···
Nr. anzeigenPreise & Kosten
Provision für Mieter
provisionsfrei
Warum sehe ich diese Anzeige? – Du siehst diese Anzeige basierend auf Ihrer Navigation auf unserer Website und den Suchkriterien, die du verwendet hast.
Lage
Die Büroimmobilie in der Melchior-Bauer-Straße befindet sich im Erfurter Stadtteil Bindersleben, direkt in der Bürostadt Airfurt - einem etablierten und wachsenden Bürostandort am Flughafen Erfurt-Weimar. Die Lage zeichnet sich durch eine hervorragende Anbindung an den öffentlichen Nahverkehr sowie durch die Nähe zu wichtigen...
Büro-/Praxisfläche
Kategorie
Bürofläche
Baujahr
1995
Bezug
sofort
Energie & Heizung
Warum sehe ich diese Anzeige? – Du siehst diese Anzeige basierend auf Ihrer Navigation auf unserer Website und den Suchkriterien, die du verwendet hast.
Wärme
Strom
Energieausweistyp
Verbrauchsausweis
Gebäudetyp
Nicht-Wohngebäude
Baujahr laut Energieausweis
1995
Wesentliche Energieträger
Erdgas schwer
Gültigkeit
04.12.2015 bis 03.12.2025
Endenergieverbrauch (Wärme)
144,80 kWh/(m²·a)
Endenergieverbrauch (Strom)
62,90 kWh/(m²·a)
Details
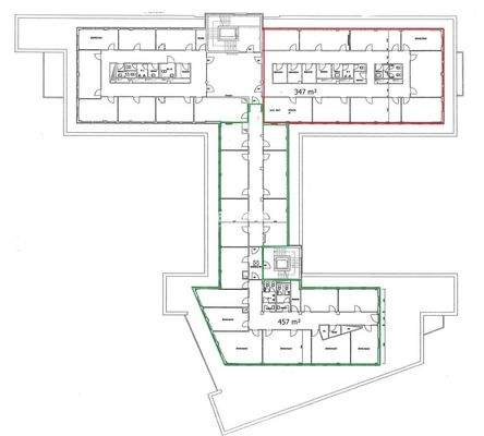
Objektbeschreibung
Das Bürogebäude wurde in den Jahren 1995-1996 erbaut und erfüllt die Anforderungen eines modernen, flexiblen Bürohauses. Es bietet eine großzügige, lichtdurchflutete Architektur mit einer effizienten Raumaufteilung, die sich perfekt für die Ansprüche von Unternehmen eignet. Das Gebäude bietet sowohl offenen als auch teilbaren...
Ausstattung
Durch den einzigartigen Zuschnittes können unterschiedlichste Flächengrößen angeboten werden. In die Einheiten gelangen Sie über ansprechende Treppenhäuser, die jeweils über einen Personenaufzug verfügen. Alle Flächen sind somit barrierefrei zu erreichen. Gernerell ist der Eigentümer bereit die Flächen individuell nach...
Weitere Informationen
Sonstiges
Widerrufsrecht
Sie können Ihre Vertragserklärung innerhalb von 14 Tagen ohne Angaben von Gründen in Textform (z.B. Brief, E-Mail) widerrufen. Die Frist beginnt nach Erhalt dieser Belehrung in Textform, jedoch nicht vor Vertragsabschluss und auch nicht vor Erfüllung unserer Informationspflichten gem. Art. 246 §...
Anbieter der Immobilie
Online-ID: 2jlt352
Referenznummer: P251028/G1/Eh8
Finde Angebote wie dieses
Hier geht es zu unserem Impressum, den Allgemeinen Geschäftsbedingungen, den Hinweisen zum Datenschutz und nutzungsbasierter Online-Werbung.