

ImmobilienCenter der Volksbank Freiburg eG
Herr Jochen Silinski
+49 ···
Nr. anzeigenPreise & Kosten
Provision für Käufer
provisionsfrei
Lage
Das Baugrundstück befindet sich in einem neuen Wohngebiet am nördlichen Ortsrand von Endingen.
Die Lage bietet alles, was Sie für den Alltag brauchen. In der Nähe finden Sie:
Bäcker, Metzger und Supermarkt
Bank, Apotheke und Post
Alles ist leicht zu Fuß oder mit dem Fahrrad erreichbar.
Auch der Bahnhof...
Die Wohnung
Wohnungslage
Erdgeschoss
Wohnanlage
Energie & Heizung
Warum sehe ich diese Anzeige? – Du siehst diese Anzeige basierend auf Ihrer Navigation auf unserer Website und den Suchkriterien, die du verwendet hast.
Energieausweis: für diesen Gebäudetyp nicht notwendig
Weitere Energiedaten
Energieträger
Elektro
Haustyp
KfW 55
Heizungsart
Fußbodenheizung, Luft-/Wasser-Wärmepumpe
Details
Objektbeschreibung
Mit insgesamt 12 hochwertig ausgestatteten Eigentumswohnungen, aufgeteilt in 2- und 3-Zimmer-Wohnungen, bietet diese Wohnanlage den idealen Lebensraum für Eigennutzer sowie attraktive Investitionsmöglichkeit für Kapitalanleger. Der Baubeginn ist bereits erfolgt, und die Fertigstellung ist für Frühjahr 2026 geplant...
Ausstattung
Individuelle Ausstattungsmerkmale:
- Photovoltaikanlage
- Elektrische Rollläden
Die Wohnanlage ist gut durchdacht und bietet Wohnungen in verschiedenen Größen. Sie sind ideal für Singles, Paare und kleine Familien. Die Wohnungen sind voraussichtlich im Frühjahr 2026 bezugsfertig.
Diese geplante...
Preisinformation
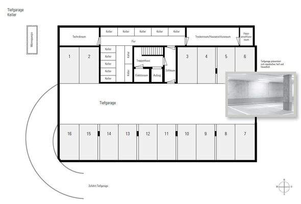
1 Tiefgaragenstellplatz, Kaufpreis: 25.000,00 EUR
Weitere Informationen
Sonstiges
Provisionshinweis:
Diese Immobilie wird so angeboten, dass kein Maklervertrag mit dem Kaufinteressenten abgeschlossen wird. Die Vergütung bei der Vermittlung dieser Immobilie trägt ausschließlich der Verkäufer. Der Immobilienmakler ist der alleinige Interessenvertreter des Verkäufers und vereinbart mit dem...
Anbieter der Immobilie

ImmobilienCenter der Volksbank Freiburg eG

Online-ID: 2jmgy5s
Referenznummer: 2024 -2301-1
Finde Angebote wie dieses
Hier geht es zu unserem Impressum, den Allgemeinen Geschäftsbedingungen, den Hinweisen zum Datenschutz und nutzungsbasierter Online-Werbung.