

TEKCE Real Estate
Herr Özkan Tekçe
+34 ···
Nr. anzeigenPreise & Kosten
Provision für Käufer
Bitte beachte, das Angebot kann bei Vertragsabschluss die Zahlung einer Provision beinhalten. Weitere Informationen erhältst Du vom Anbieter.
Das Haus
Kategorie
Einfamilienhaus
Baujahr
2025
Bezug
TEKCE Real Estate
Details
Objektbeschreibung
Kurzbeschreibung
Die luxuriösen Häuser liegen inmitten eines weitläufigen Grundstücks in einer malerischen natürlichen Umgebung, in einer bewachten Wohnanlage mit eigene Gärten, Pools und bequeme Außenparkplätze.
Objekt
Luxuriöse, mediterran inspirierte Häuser mit 3 oder 4 Schlafzimmern und Pools in einem...
Weitere Informationen
Stichworte
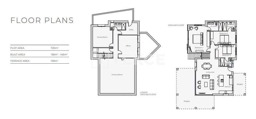
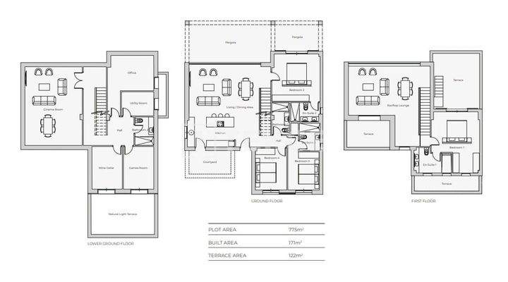
Stellplatz vorhanden, Nutzfläche: 136,00 m², Anzahl der Schlafzimmer: 3, Anzahl der Badezimmer: 3, Anzahl der Wohn-Schlafzimmer: 1, Bundesland: Cuevas del Almanzora, 1 Etagen
Anbieter der Immobilie
TEKCE Real Estate
C/El Montículo 8, Benalmádena, 29631 MÁLAGA

Online-ID: 2jmxp5d
Referenznummer: LEI-00008-3-DetachedVilla
Finde Angebote wie dieses
Hier geht es zu unserem Impressum, den Allgemeinen Geschäftsbedingungen, den Hinweisen zum Datenschutz und nutzungsbasierter Online-Werbung.