
Saxowert Immobilien GmbH & Co. KG
Herr Daniel Thiele
+49 ···
Nr. anzeigenPreise & Kosten
Provision für Käufer
7,14 % inkl. MwSt.
Lage
Neukirchen ist ein Ortsteil der Gemeinde Reinsberg und liegt im östlichen Ausläufer des grünen Erzgebirgsvorlandes. Der Ortsteil ist umgeben vom Tännichtbach, einem Zufluss der Triebisch. Des Weiteren laden die Bergstollen zum Besuch ein, die einmalige Eindrücke bieten. In Reinsberg gibt es weiterhin ein Freibad, welches im...
Das Haus
Kategorie
Mehrfamilienhaus
Baujahr
1900
Derzeitige Nutzung
vermietet
Energie & Heizung
Warum sehe ich diese Anzeige? – Du siehst diese Anzeige basierend auf Ihrer Navigation auf unserer Website und den Suchkriterien, die du verwendet hast.
Energieausweistyp
Bedarfsausweis
Gebäudetyp
Wohngebäude
Gültigkeit
20.09.2024 bis 19.09.2034
Effizienzklasse
C
Endenergiebedarf
84,00 kWh/(m²·a)
Details
Objektbeschreibung
Zum Verkauf steht dieses idyllische Mehrfamilienhaus, welches ca. 1900 in Massivbauweise errichtet und 1998 kernsaniert wurde.
Unter anderem verfügt das Objekt somit über neue Türen und Fenster, Bodenbelege, Bäder, etc. sowie einen aus Stahl gefertigten Balkonanbau, einer modernisierten Heizanlage, eine hochwertige...
Ausstattung
+ Mehrfamilienhaus mit 6 Wohneinheiten
+ Baujahr ca. 1900
+ voll unterkellert
+ Modernisierung 2021: Vollwärmeschutz für komplettes Gebäude mit Keller-Lüftungsanlage ? 14 cm KMF u. Styrodur Hartschaum
+ Kernsanierung 1998: hochwertiger Balkonanbau; Heizanlage; Türen & Fenster; Dachdeckung; Elektrik; Innenputz...
Preisinformation
7 Stellplätze
Weitere Informationen
Sonstiges
Alle in diesem Angebot enthaltenen Angaben, Darstellungen und Preise stammen ausschließlich vom Eigentümer oder eines Dritten. Eine Haftung unseres Unternehmens hierfür ist ausgeschlossen.
Stichworte
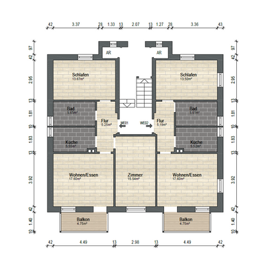
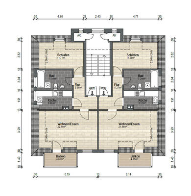
Stellplatz vorhanden, Anzahl der Schlafzimmer: 6, Anzahl der Badezimmer: 6, Anzahl Balkone: 1, 2 Etagen...
Anbieter der Immobilie
Online-ID: 2jmxr5e
Referenznummer: 4019
Finde Angebote wie dieses
Hier geht es zu unserem Impressum, den Allgemeinen Geschäftsbedingungen, den Hinweisen zum Datenschutz und nutzungsbasierter Online-Werbung.