Version: 8.26.0Navigation überspringen
1.915 €
191,5 m² Bürofläche
Immowelt logo

Bürofläche zur Miete • provisionsfrei
1.915 €
191,5 m² Bürofläche

Bürofläche auf Carlshöhe

Nach umfangreichen Baumaßnahmen an den unter Denkmalschutz stehenden imposanten Backsteingebäuden des Eingangs-Ensembles, konnten die ersten Geschäftsräume im April 2010 bezogen werden.
Durch die hochwertige Sanierung erfüllen die Gebäude aktuelle Energie- und Technikstandards. Die stilvolle Kombination aus Bestand und neu integrierten Bauelementen sorgt für einen repräsentativen Auftritt.

Merkmale

  • Bezug: ab 01.10.2025
  • 1. Geschoss
  • Teeküche
  • Personenaufzug
  • 4 Stellplätze: Außen-Stellplatz
  • Barrierefrei
  • Bodenbelag: Teppich
  • Beleuchtung: Deckenbeleuchtung

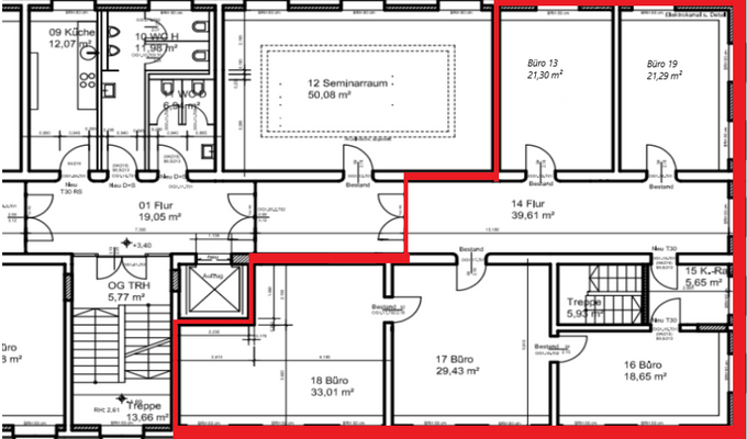
Grundrisse

Grundrisse
1 / 1

Bausubstanz und Energie

Energieausweis

Ein Energieausweis ist für diesen Gebäudetyp nicht notwendig.
  • Baujahr2011
  • EnergieträgerFernwärme
Immowelt logo

Mietkosten

Warmmiete
2.540,20 €
Nettomiete
1.915,20 €
Nebenkosten
300 €
Heizkosten
325 €
Zusätzliche Kosten
Miete pro Stellplatz
20 €
Provision für Mieter
provisionsfrei
Kaution
5500 €

Lage

address-icon
Eckernförde (24340)
Der Anbieter hat die genaue Adresse nicht freigegeben
Naturnah und zentral – Carlshöhe verbindet die Vorteile eines städtischen Umfelds mit der Idylle vom Wohnen im Grünen. Auf der Nordseite des Geländes bringt die gute Verkehrsanbindung Auto-, Rad- und Busfahrer schnell zu den etwa 1,2 Kilometer entfernten Verbrauchermärkten sowie in die 2,5 Kilometer entfernte Innenstadt. Eine Bushaltestelle finden Sie neben der Carlshöhe Einfahrt. Im Süden schließt ein kleiner Wanderweg direkt ans Gelände an und führt Spaziergänger und Jogger zum Windebyer Noor, einer der schönen Naturoasen der Stadt.

Weitere Informationen

Sonstiges Das Gebäude verfügt über einen Personenaufzug sowie einen barrierefreien Eingang. Zahlreiche Mitarbeiterparkplätze befinden sich hinter dem Haus. Für Kunden und Gäste stehen im Innenhof der Carlshöhe – direkt vor dem Gebäude – komfortable Parkmöglichkeiten zur Verfügung. Auch mit öffentlichen Verkehrsmitteln ist die Carlshöhe bequem erreichbar.
Die angegebene Miete versteht sich als Netto-Warmmiete. In der ausgewiesenen Fläche sind 26,52 m² Gemeinschaftsfläche enthalten.
Werden Sie Teil eines innovativen und sozialen Arbeitsumfelds! Stichworte Sonstiges: Getrennte Damen- und Herren-WCs, frei werdend

Weitere Services

Lust auf eine Besichtigung?
Eine Frage zur Immobilie?
Mit einer persönlichen Nachricht hast du bessere Chancen auf eine Antwort.
Mit der Nutzung der oben angegebenen Telefonnummer oder durch Klicken auf „Kontaktieren“ akzeptierst Du die Allgemeinen Nutzungsbedingungen, denen Du jederzeit widersprechen kannst. Weitere Informationen zum Datenschutz

Über den Anbieter

Carlshöhe 36, 24340 Eckernförde
Herr Dennis Jansen
Herr Dennis JansenDein Kontakt
Online-ID: 23UDG35JFMAE
Wie zufrieden bist du mit dieser Seite (nicht mit der Immobilie selbst)?