
SCHLEICHER | Immobilien | Versicherungen | Finanzen
Herr Jürgen Schleicher
077 ···
Nr. anzeigenPreise & Kosten
Provision für Käufer
Der Käufer oder der im Interesse des Käufers handelnde Empfänger dieses Angebotes zahlt an uns
3,57 % inkl. der gesetzl. MwSt. berechnet aus dem Gesamtkaufpreis. Die Provision ist verdient und fällig mit Abschluss eines privatrechtlichen oder notari
Lage
Die Wohnung befindet sich in zentrumsnaher Lage von Bad Dürrheim. Alle wichtigen Einrichtungen wie Einkaufsmöglichkeiten, Schulen, Ärzte und Freizeitangebote sind schnell erreichbar. Die ruhige und dennoch zentrale Wohnanlage bietet eine perfekte Kombination aus Erholung und urbanem Leben.
Das aktuelle Hausgeld beträgt...
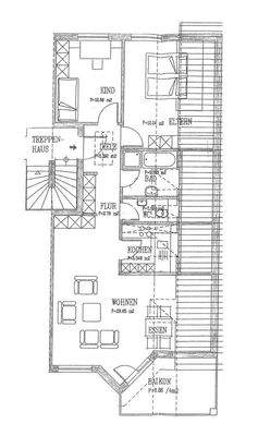
Die Wohnung
Wohnanlage
Energie & Heizung
Warum sehe ich diese Anzeige? – Du siehst diese Anzeige basierend auf Ihrer Navigation auf unserer Website und den Suchkriterien, die du verwendet hast.
Energieausweistyp
Bedarfsausweis
Gebäudetyp
Wohngebäude
Baujahr laut Energieausweis
1992
Gültigkeit
bis 20.10.2034
Effizienzklasse
D
Endenergiebedarf
110,10 kWh/(m²·a)
Weitere Energiedaten
Energieträger
Gas
Details
Objektbeschreibung
Objektbeschreibung
Diese charmante und gepflegte Dachgeschosswohnung befindet sich in einem ruhigen und sehr gepflegten 1992 erstellten 6-Familienhaus in zentraler Lage von Bad Dürrheim. Das Wohnhaus vermittelt bereits beim Eintreten einen angenehmen Eindruck. Mit einer Wohnfläche von ca. 73,83 m² bietet die Wohnung eine...
Weitere Informationen
Stichworte/Objekt...
3,5 Zimmerwohnung in zentraler Lage von Bad Dürrheim
Anbieter der Immobilie
SCHLEICHER | Immobilien | Versicherungen | Finanzen
Niedere Str. 78-80, 78050 Villingen-Schwenningen
Online-ID: 2jnfs5x
Referenznummer: BW 2724
Finde Angebote wie dieses
Hier geht es zu unserem Impressum, den Allgemeinen Geschäftsbedingungen, den Hinweisen zum Datenschutz und nutzungsbasierter Online-Werbung.