

Sirius Facilities GmbH
Herr Felix Meier
080 ···
Nr. anzeigenPreise & Kosten
Kaution
3 Bruttowarmmieten
Provision für Mieter
Die Vermietung erfolgt provisionsfrei!
Warum sehe ich diese Anzeige? – Du siehst diese Anzeige basierend auf Ihrer Navigation auf unserer Website und den Suchkriterien, die du verwendet hast.
Lage
Der Standort überzeugt nicht nur mit seiner zentralen Lage im Ruhrgebiet, sondern auch durch optimale Anbindungen an die Autobahn, den Flughafen Düsseldorf und den öffentlichen Nahverkehr. Dies gewährleistet, dass Sie und Ihre Mitarbeiter Ihre gemieteten Flächen bequem und flexibel erreichen können. Zudem stehen Ihnen...
Büro-/Praxisfläche
Kategorie
Bürofläche
Energie & Heizung
Warum sehe ich diese Anzeige? – Du siehst diese Anzeige basierend auf Ihrer Navigation auf unserer Website und den Suchkriterien, die du verwendet hast.
Weitere Energiedaten
Heizungsart
Etagenheizung
Details
Objektbeschreibung
Der Sirius Business Park Düsseldorf-Süd bietet eine breite Palette an Gewerbeflächen: Büros, Lager, Werkstätten und Fertigungshallen. Die kleineren Werkstatträume sind perfekt für Bastler und Künstler oder kleinere Handwerksbetriebe, während die großzügigen Hallen optimal für Produktionsfirmen aus unterschiedlichen Branchen...
Ausstattung
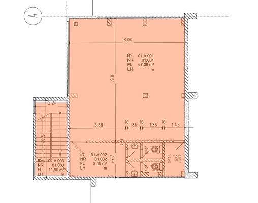
. Bürofläche: 181,06 m² im 1&2 . Obergeschoss (HNF: 154,91 m², NNF: 26,15 m²)
. Zustand: Erstbezug, Teppichboden/Nadelfilz
. Technik: Schneller DSL-Anschluss
. Komfort: Personenaufzug, Teeküche, private getrennte Sanitäranlagen
. Verfügbarkeit: Sofort bezugsfertig (Schlüssel in der Hand)
. Parken: Mietbare...
Weitere Informationen
Sonstiges
*Das Angebot gilt für Neukundenverträge über Büros, die bis zum 16.03.26 unterzeichnet werden, und ist nicht kombinierbar mit anderen Rabatten und Aktionen. Die mietfreie Zeit wird ab 12 Monaten Laufzeit im 12. Monat, ab 24 Monaten im 12. und 24. Monat gewährt. Das Angebot bezieht sich auf die Nettokaltmiete...
Dokumente
Anbieter der Immobilie

Online-ID: 2jnjc5v
Referenznummer: A11962t
Finde Angebote wie dieses
Hier geht es zu unserem Impressum, den Allgemeinen Geschäftsbedingungen, den Hinweisen zum Datenschutz und nutzungsbasierter Online-Werbung.