
Sächsische Wohn- & Gewerbeimmobilien GmbH
Frau Madeleine Polychroniadis
035 ···
Nr. anzeigenPreise & Kosten
Provision für Käufer
3,57% des Kaufpreises inkl. MwSt.
Lage
Neuenhagen gehört zum Landkreis Märkisch-Oberland. Dieses charmante Dorf bietet Einblick in das kulturelle Erbe Brandenburgs.
Trotzdem hat die Moderne auch dort Einzug gehalten. Neben Lebensmitteldiscountern finden sich auch Supermärkte. Auch für spezialisierte Geschäfte wie Feinkost oder Bekleidung muss man nicht in einen...
Die Wohnung
Wohnungslage
Erdgeschoss
Bezug
sofort
Derzeitige Nutzung
frei
Wohnanlage
Energie & Heizung
Warum sehe ich diese Anzeige? – Du siehst diese Anzeige basierend auf Ihrer Navigation auf unserer Website und den Suchkriterien, die du verwendet hast.
Energieausweistyp
Bedarfsausweis
Gebäudetyp
Wohngebäude
Baujahr laut Energieausweis
1997
Wesentliche Energieträger
Gas
Gültigkeit
15.02.2019 bis 15.02.2029
Effizienzklasse
E
Endenergiebedarf
138,00 kWh/(m²·a)
Weitere Energiedaten
Energieträger
Gas
Heizungsart
Zentralheizung
Details
Objektbeschreibung
Objektbeschreibung
Freistehendes Mehrfamilienhaus in ruhiger und grüner Umgebung.
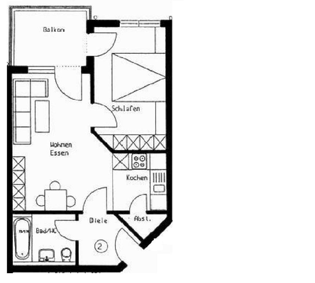
Raumaufteilung
Die Wohnung ist wunderbar aufgeteilt. Die Küche, mit Einbauküche, befindet sich direkt am Wohnzimmer. An der Küche befindet sich eine praktische Vorratskammer. Den gemütlichen Balkon, der in den Garten zeigt, kann man...
Weitere Informationen
Sonstiges
Bitte haben Sie Verständnis, dass eine Haftung unsererseits für die enthaltenen Angaben, Darstellungen und Preise ausgeschlossen ist. Irrtum bleibt vorbehalten. Bei diesem Exposé handelt es sich um eine Vorabinformation, als Rechtsgrundlage gilt der abgeschlossene...
Anbieter der Immobilie
Sächsische Wohn- & Gewerbeimmobilien GmbH
Karcherallee 47, 01277 Dresden
Online-ID: 2jnvy5w
Finde Angebote wie dieses
Hier geht es zu unserem Impressum, den Allgemeinen Geschäftsbedingungen, den Hinweisen zum Datenschutz und nutzungsbasierter Online-Werbung.