

HUETHER & PARTNER SLU
Herrn Walter Hüther
003 ···
Nr. anzeigenPreise & Kosten
Provision für Käufer
Bitte beachte, das Angebot kann bei Vertragsabschluss die Zahlung einer Provision beinhalten. Weitere Informationen erhältst Du vom Anbieter.
Lage
Cala Ratjada ist ein charmantes Küstendorf an der Nordostküste Mallorcas, das vor allem von Einheimischen und Residenten geschätzt wird. Die Gegend bietet eine entspannte Atmosphäre mit malerischen Buchten und schönen Stränden, die ideal für ruhige Tage am Meer sind.
Cala Ratjada hat eine authentische lokale...
Die Wohnung
Wohnungslage
Erdgeschoss
Bezug
Nach Fertigstellung
Wohnanlage
Details
Objektbeschreibung
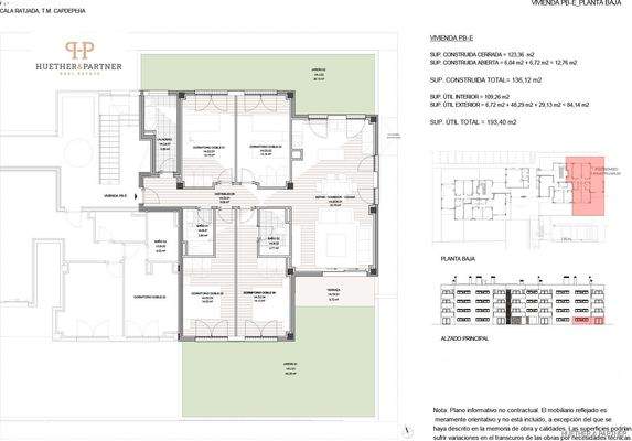
Erdgeschosswohnung mit 4 Schlafzimmern:
Dieses moderne Mehrfamilienhaus erstreckt sich über Erdgeschoss und drei Stockwerke und umfasst insgesamt 19 Eigentumswohnungen sowie 33 Außenstellplätze, ausgestattet mit Wallboxen für Elektrofahrzeuge.
Im Erdgeschoss befinden sich zwei Treppenhäuser und zwei Aufzüge, die den...
Ausstattung
- LED-Strahler in Bädern, Küche, Flur und Schlafzimmern. LED-Beleuchtung über der Tür auf dem Balkon.
- Einbauschränke ausgestattet mit Stauraum, Kleiderstange, Schubladen und Regalen
- Dreh-Kipp-Fenster und Aluminium-Schiebetüren mit thermischer Trennung
- Verglasung Climalit
- Klappläden aus Aluminium
-...
Weitere Informationen
Sonstiges
Fragen Sie uns direkt:
Für weitere Informationen fordern Sie bitte die Baubeschreibung an.
Wir schicken Ihnen gerne die aktuelle Preisliste zu. (die Wohnungen haben unterschiedliche Preise)
Weiter können wir Ihnen den wöchentlichen Stand der noch vorhandenen Wohnungen nennen.
Vereinbaren Sie...
Anbieter der Immobilie
HUETHER & PARTNER SLU
Ronda del Oeste N°76, 07680 MANACOR - PORTO CRISTO

Online-ID: 2jnwu5v
Referenznummer: 25-082
Finde Angebote wie dieses
Hier geht es zu unserem Impressum, den Allgemeinen Geschäftsbedingungen, den Hinweisen zum Datenschutz und nutzungsbasierter Online-Werbung.