

YOUR TIMES REAL ESTATE
Frau Judith Lenz
+49 ···
Nr. anzeigenPreise & Kosten
Kaution
2.430 €
Warum sehe ich diese Anzeige? – Du siehst diese Anzeige basierend auf Ihrer Navigation auf unserer Website und den Suchkriterien, die du verwendet hast.
Lage
Biesenthal befindet sich im Bundesland Brandenburg direkt im Speckgu?rtel der Bundeshauptstadt und Metropole Berlin. Die Gemeinde liegt mitten im Naturpark Barnim, ein beliebtes und überregional bekanntes Erholungsgebiet auf 750 ha mit Wäldern, Seen, Mooren, historischen Wasserstraßen und freilebenden Pferden. Die Geschichte...
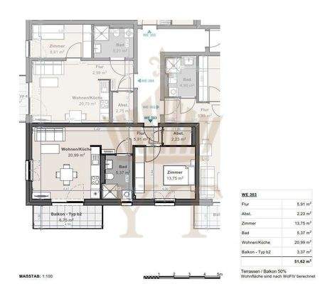
Die Wohnung
Wohnungslage
1. Geschoss
Bezug
sofort
Wohnanlage
Energie & Heizung
Warum sehe ich diese Anzeige? – Du siehst diese Anzeige basierend auf Ihrer Navigation auf unserer Website und den Suchkriterien, die du verwendet hast.
Energieausweistyp
Bedarfsausweis
Gebäudetyp
Wohngebäude
Wesentliche Energieträger
Erdwärme
Gültigkeit
10.11.2023 bis 10.11.2033
Endenergiebedarf
12,80 kWh/(m²·a)
Weitere Energiedaten
Energieträger
Erdwärme
Details
Objektbeschreibung
Diese moderne 2-Zimmer Neubauwohnung für Senioren mit einer Wohnfläche 51,62 m² Haus 3 im 1. OG mit einem sonnigen Süd-Balkon glänzt mit einer Vielzahl von Annehmlichkeiten.
Beim Betreten der Wohnung eröffnet sich zunächst ein geräumiger Eingangsbereich, der nach rechts in einen großzügigen Wohn- und Essbereich mit...
Ausstattung
- großzügiger Flur
- lichtdurchfluteter Wohn- und Essbereich mit Einbauküche und Zugang zum Balkon
- komfortables und gemütliches Schlafzimmer
- modernes Badezimmer mit bodentiefer Dusche, WC, Waschbecken und Handtuchheizung
- sonniger Süd-Balkon
- praktischer Abstellraum
- elektrische Rolläden bei...
Weitere Informationen
Sonstiges
Bitte senden Sie uns eine aussagekräftige Bewerbung zu Ihrer Person über die Portalanfrage zu. Das Nutzen von Standardformulierungen aus den Portalen ist nicht ausreichend und Ihre Anfrage wird dann leider nicht berücksichtigt!
Die YOUR TIMES REAL ESTATE, Judith Lenz wurde vom Eigentümer exklusiv...
Anbieter der Immobilie

Online-ID: 2jnz35u
Referenznummer: 3.03-3
Finde Angebote wie dieses
Hier geht es zu unserem Impressum, den Allgemeinen Geschäftsbedingungen, den Hinweisen zum Datenschutz und nutzungsbasierter Online-Werbung.