
ZUGIS Grundstücks & Immobilienservice
Herr Holger Stephan
039 ···
Nr. anzeigenPreise & Kosten
Provision für Käufer
1.785,00
Lage
Der Ort Gramelow liegt in einem Endmoränengebiet östlich des Tollensesees. Westlich des Ortes befindet sich der Gramelower See.
Gramelow ist ein Ortsteil der Stadt Burg Stargard des Amtes Stargarder Land im Landkreis Mecklenburgische Seenplatte in Mecklenburg-Vorpommern und befindet sich 6 Kilometer südsüdöstlich der...
Das Haus
Kategorie
Einfamilienhaus
Geschosse
1 Geschoss
Baujahr
2025
Bezug
2026
Energie & Heizung
Warum sehe ich diese Anzeige? – Du siehst diese Anzeige basierend auf Ihrer Navigation auf unserer Website und den Suchkriterien, die du verwendet hast.
Weitere Energiedaten
Haustyp
Fertighaus, KfW 60
Heizungsart
Fußbodenheizung, Luft-/Wasser-Wärmepumpe
Details
Ausstattung
Das Haus ermöglicht einen barrierefreien Zugang.
Im Kaufpreis enthalten sind:
- alle Bodenbeläge (nach Bemusterung)
- sämtliche Malerarbeiten an Decken und Wänden (nach Bemusterung)
- komplette Sanitärausstattungen gemäß dem Grundriss
- Wohnungseingangs- und Innentüren (nach Bemusterung)
- vollgedämmte...
Weitere Informationen
Das Objekt
https://zuhaus-schwedenbau.info
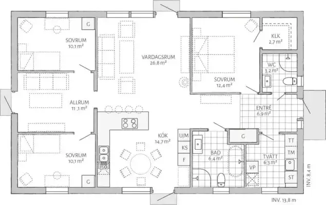
Mit Holzverzierungen, Sprossenfenstern und weißen Eckpfosten lässt diese Haus das schwedische Architekturerbe aufleben. Ein kleines Haus mit 116 m² Wohnfläche - ein Raumwunder, welches alle Räume und Funktionen bietet, die Sie benötigen.
Hier werden das Wohnzimmer und...
Anbieter der Immobilie
ZUGIS Grundstücks & Immobilienservice
Gerstenstraße 9, 17034 Neubrandenburg
Online-ID: 2jpjk5p
Finde Angebote wie dieses
Hier geht es zu unserem Impressum, den Allgemeinen Geschäftsbedingungen, den Hinweisen zum Datenschutz und nutzungsbasierter Online-Werbung.