

Björn Grube & Partner Immobilienberatung OHG
Herr Björn Grube
022 ···
Nr. anzeigenPreise & Kosten
Provision für Käufer
3,570 % inkl. MwSt.
Lage
Es handelt sich hier um eine Höhenlage im rechtsrheinischen Stadtbezirk. Kindergarten, Grundschule und Sportverein sind in wenigen Minuten zu erreichen. Die Buslinien 608 und 609 verbinden die Ortsteile mit dem Bonner Zentrum (Hauptbahnhof), so dass die Anbindung sehr gut ist. Die Autobahn A 59 und A 3 sind in ca. 10 Minuten...
Das Renditeobjekt
Kategorie
Mehrfamilienhaus
Baujahr
1995
Bezug
nach Vereinbarung
Energie & Heizung
Warum sehe ich diese Anzeige? – Du siehst diese Anzeige basierend auf Ihrer Navigation auf unserer Website und den Suchkriterien, die du verwendet hast.
Energieausweistyp
Verbrauchsausweis
Gebäudetyp
Wohngebäude
Wesentliche Energieträger
Erdgas
Effizienzklasse
D
Endenergieverbrauch
110,20 kWh/(m²·a) - Warmwasser enthalten
Weitere Energiedaten
Energieträger
Gas
Heizungsart
Zentralheizung
Details
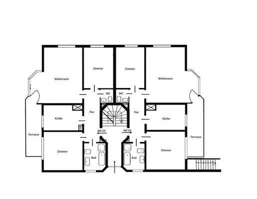
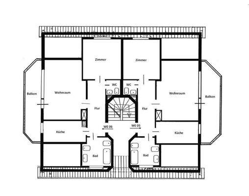
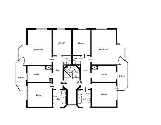
Objektbeschreibung
Es handelt sich um ein äußerst gepflegtes 6-Parteienhaus mit Tiefgarage. Die Wohnungen im Erd- und Obergeschoss sind als großzügige 3- Zimmerwohnungen ausgeführt, im Dachgeschoss befinden sich zwei 2-Zimmerwohnungen. Zu jeder Wohnung gehört ein Kellerraum und ein Tiefgaragenstellplatz. Weiterhin ist jede der Wohnungen mit...
Preisinformation
6 Tiefgaragenstellplätze
Ist-Mieteinnahmen pro Jahr: 54.393,00 EUR
Weitere Informationen
Sonstiges
Wir möchten darauf hinweisen, dass Anzeigen, die vom Betreiber des Internetportals im Rahmen unseres Angebots geschaltet werden, mit uns nicht in Verbindung stehen.
Ausdrücklich möchten wir uns hiermit von Werbung der Banken, der Kabel- oder Telefonanbieter, der Versicherungen, der Kontaktportale oder...
Anbieter der Immobilie

Björn Grube & Partner Immobilienberatung OHG
Stiftsstraße 46, 53225 Bonn

Online-ID: 2jpnu5z
Referenznummer: 0-900001370
Finde Angebote wie dieses
Hier geht es zu unserem Impressum, den Allgemeinen Geschäftsbedingungen, den Hinweisen zum Datenschutz und nutzungsbasierter Online-Werbung.