

Volksbank Immobilien Münsterland GmbH
Herr Marco Kohne
025 ···
Nr. anzeigenDieses Angebot ist Teil des Neubauprojekts
Modernes und Nachhaltiges Wohnen
Preise & Kosten
Provision für Käufer
3,00 % inkl. gesetzl. MwSt. vom Käufer inkl. MwSt.
Lage
Steinfurt-Burgsteinfurt ist ein Ort im Münsterland, der geprägt ist durch seine historischen Immobilien wie das wunderschöne Wasserschloss, die älteste Hochschule Westfalens, alte Bürgerhäuser, der niedlichen historischen Altstadt mit gemütlichen Cafés und Restaurants. Der Burgsteinfurter Wochenmarkt ist immer einen Besuch...
Die Wohnung
Kategorie
Maisonette
Wohnanlage
Das Neubauprojekt
Energie & Heizung
Warum sehe ich diese Anzeige? – Du siehst diese Anzeige basierend auf Ihrer Navigation auf unserer Website und den Suchkriterien, die du verwendet hast.
Energieausweis: für diesen Gebäudetyp nicht notwendig
Weitere Energiedaten
Heizungsart
Fußbodenheizung, Luft-/Wasser-Wärmepumpe
Details
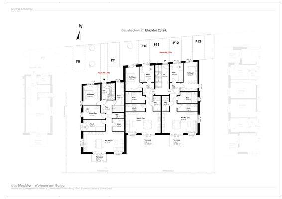
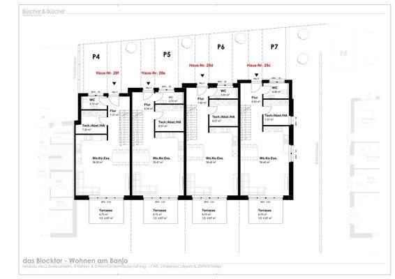
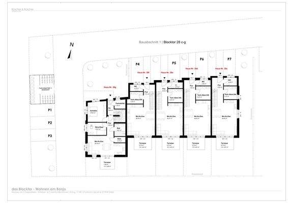
Objektbeschreibung
Die Lage spricht für sich!
In Steinfurt - Burgsteinfurt, im Herzen des Münsterlandes, entsteht die neue Wohnanlage "Wohnen am Bagno" in unmittelbarer Nähe zur Altstadt von Burgsteinfurt und zum Eingang des Naherholungsgebietes Bagno-Park sowie dem Steinfurter Wasserschloss.
Diese exklusive Wohnanlage im...
Ausstattung
- 17 Wohneinheiten
- min. 1 PKW-Stellplatz pro Wohnung
- die Wohnungen sind größtenteils barrierefrei geplant
- KFW-40-NH-Standard mit QNG Zertifikat
- Luft-Wärmepumpe mit einem Warmwasserspeicher und einer unterstützenden Photovoltaikanlage
- Kunststofffenster mit 3-fach-Isolierverglasung...
Preisinformation
1 Stellplatz, Kaufpreis: 7.500,00 EUR
Weitere Informationen
Sonstiges
Die Immobilienangebote verstehen sich freibleibend und unverbindlich. Zwischenverkauf ausdrücklich vorbehalten. Die Objektbeschreibungen wurde aufgrund der Angaben der Verkäufer erstellt. Für die Richtigkeit wird keine Haftung übernommen. Mit dem Eigentümer wurde vereinbart, dass Besichtigungen nur gemeinsam mit...
Anbieter der Immobilie
Volksbank Immobilien Münsterland GmbH
Neubrückenstr. 66, 48143 Münster

Online-ID: 2jps45y
Referenznummer: 20127_1
Finde Angebote wie dieses
Hier geht es zu unserem Impressum, den Allgemeinen Geschäftsbedingungen, den Hinweisen zum Datenschutz und nutzungsbasierter Online-Werbung.