
morespace real estate gmbh
Herr Manuel Hennings
004 ···
Nr. anzeigenPreise & Kosten
Provision für Mieter
Bitte beachte, das Angebot kann bei Vertragsabschluss die Zahlung einer Provision beinhalten. Weitere Informationen erhältst Du vom Anbieter.
Warum sehe ich diese Anzeige? – Du siehst diese Anzeige basierend auf Ihrer Navigation auf unserer Website und den Suchkriterien, die du verwendet hast.
Lage
Das neue Schultheiss Quartier befindet sich nur wenige Minuten vom Hauptbahnhof entfernt. Öffentliche Verkehrsmittel wie S- und U-Bahn sowie diverse Buslinien sind direkt vor dem Objekt vorhanden. Der Anschluss an die A100 und den Flughafen Tegel sind innerhalb weniger Fahrminuten erreichbar.Darüber hinaus bietet der Food...
Büro-/Praxisfläche
Kategorie
Bürogebäude
Geschoss
Erdgeschoss
Details
Objektbeschreibung
Das Objekt befindet sich im Bezirk Berlin-Mitte. Auf rund 70.000 m² Bruttogeschossfläche entsteht hier ein Mix aus Büro-, Einzelhandels-, Gastronomie- und Hotelflächen. Das Gelände der historischen Schultheiss Brauerei erstrahlt wieder in neuem Glanz und wird als Stadtteilquartier zum Treffpunkt für Menschen aus dem Kiez und...
Ausstattung
Urban
Flexibel
Effizient
Openspace
Parkett
Kappendecke
Highspeed Internet
Glastrennwände
Urban
Flexible
Efficient
Openspace
Parquet flooring
Capped ceiling
High-speed Internet
Glass partitions
Weitere Informationen
Sonstiges
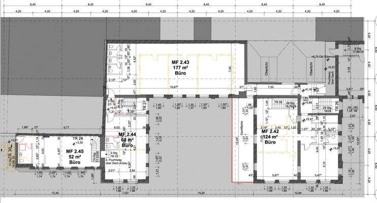
Flächenübersicht Haus E
- EG (Haus E) = 752qm
- 1. OG (Haus E) = 440 qm
Area overview House E
- Ground floor (House E) = 752sqm
- 1st floor (House E) = 440 sqm
Stichworte
Bundesland: Berlin
Anbieter der Immobilie
Online-ID: 2jpwg5j
Referenznummer: MS4431
Finde Angebote wie dieses
Hier geht es zu unserem Impressum, den Allgemeinen Geschäftsbedingungen, den Hinweisen zum Datenschutz und nutzungsbasierter Online-Werbung.