

Garda Haus Srl
Frau Ellen Piacentini
+39 ···
Nr. anzeigenPreise & Kosten
Provision für Käufer
ja maklerprovision im Preis nicht inbegriffen inkl. MwSt.
Das Haus
Kategorie
Doppelhaushälfte
Baujahr
2008
Energie & Heizung
Warum sehe ich diese Anzeige? – Du siehst diese Anzeige basierend auf Ihrer Navigation auf unserer Website und den Suchkriterien, die du verwendet hast.
Energieausweistyp
Bedarfsausweis
Gebäudetyp
Wohngebäude
Baujahr laut Energieausweis
2022
Gültigkeit
bis 01.12.2032
Endenergiebedarf
190,72 kWh/(m²·a)
Weitere Energiedaten
Energieträger
Gas
Heizungsart
Fußbodenheizung
Details
Objektbeschreibung
Im wunderschönen Sirmione, fast eine Insel im Herzen des Gardasees, gelegen, ist diese Residenz ein wahres Spektakel für die Augen und die Sinne. Eingebettet in eine privilegierte Panoramalage, nur wenige Schritte von der historischen Villa des Dichters Catullus und dem Haus von Maria Callas entfernt, repräsentiert die...
Weitere Informationen
Stichworte
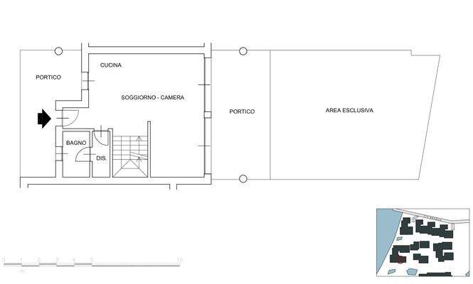
Tiefgarage vorhanden, Nutzfläche: 142,00 m², Verkaufsfläche: 142,00 m², Anzahl der Schlafzimmer: 2, Anzahl der Badezimmer: 3, Gartenfläche: 100,00 m², Anzahl der Wohneinheiten: 150, Bundesland: Lombardei, Lage im Wohngebiet
Anbieter der Immobilie
Garda Haus Srl
Via Meucci 77, 25080 PADENGHE SUL GARDA

Online-ID: 2jq5e5w
Referenznummer: SV00D6
Finde Angebote wie dieses
Hier geht es zu unserem Impressum, den Allgemeinen Geschäftsbedingungen, den Hinweisen zum Datenschutz und nutzungsbasierter Online-Werbung.