
BAUTEC Beteiligungsges. mbH & Co. Vermiet- und Service KG
Frau Peggy Schnell
+49 ···
Nr. anzeigenPreise & Kosten
Kaution
406,00 €
Provision für Mieter
provisionsfrei
Warum sehe ich diese Anzeige? – Du siehst diese Anzeige basierend auf Ihrer Navigation auf unserer Website und den Suchkriterien, die du verwendet hast.
Lage
Arbeiten in diesem Umfeld hat viele Vorteile. Die hervorragende Infrastruktur ermöglicht eine perfekte Ausgangsbasis, um ein komfortables berufliches Ambiente und direkte Kundennähe in Einklang zu bringen und miteinander zu verbinden.
Haltestellen des öffentlichen Nahverkehr und der Hauptbahnhof befinden sich in...
Büro-/Praxisfläche
Kategorie
Bürogebäude
Bezug
sofort
Energie & Heizung
Warum sehe ich diese Anzeige? – Du siehst diese Anzeige basierend auf Ihrer Navigation auf unserer Website und den Suchkriterien, die du verwendet hast.
Energieausweis: für diesen Gebäudetyp nicht notwendig
Weitere Energiedaten
Energieträger
Fernwärme
Details
Objektbeschreibung
Direkt am Ausgang des nördlichen Bahnhofstunnel des Cottbuser Hauptbahnhofes befindet sich der Großenhainer Bahnhof. Das nördliche Bahnhofsumfeld, wurde vor Kurzem zu einem attraktiven Zugang zur Innenstadt umgestaltet.
Ausstattung
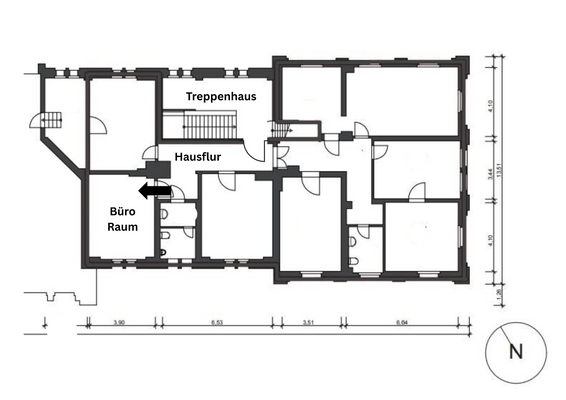
Der Büroraum umfasst eine Fläche von ca. 20,50 m² und bietet ausreichend Platz um den Raum flexibel und funktional einzurichten. Auf dem Gelände befinden sich ausreichend Pkw-Stellplatzflächen, welche gegen eine monatliche Nutzungsgebühr von 25,00 € netto pro Stellplatz angemietet werden können.
-> Kaltmiete +...
Weitere Informationen
Sonstiges
Live ist immer besser: Vereinbaren Sie eine individuelle Besichtigung dieser Einheit. Wenn Sie uns kontaktieren, geben Sie bitte in jedem Fall auch Ihre Telefonnummer an. Vielen Dank!
Alle Angaben sind ohne Gewähr und basieren ausschließlich auf Informationen, welche uns vom Eigentümer zur Verfügung...
Anbieter der Immobilie
BAUTEC Beteiligungsges. mbH & Co. Vermiet- und Service KG
Stadtring 4, 03042 Cottbus
Online-ID: 2jqbg5z
Referenznummer: 7867#Rtx0A6
Finde Angebote wie dieses
Hier geht es zu unserem Impressum, den Allgemeinen Geschäftsbedingungen, den Hinweisen zum Datenschutz und nutzungsbasierter Online-Werbung.