

Garda Haus Srl
Frau Paola Mosele
+39 ···
Nr. anzeigenPreise & Kosten
Provision für Käufer
ja maklerprovision im Preis nicht inbegriffen
Das Haus
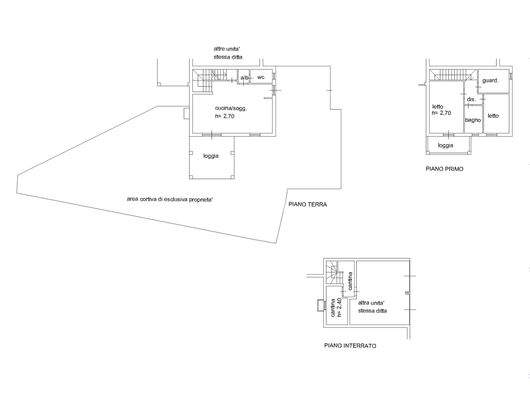
Kategorie
Reihenmittelhaus
Baujahr
2000
Energie & Heizung
Warum sehe ich diese Anzeige? – Du siehst diese Anzeige basierend auf Ihrer Navigation auf unserer Website und den Suchkriterien, die du verwendet hast.
Energieausweistyp
Bedarfsausweis
Gebäudetyp
Wohngebäude
Baujahr laut Energieausweis
2000
Gültigkeit
bis 01.01.2034
Endenergiebedarf
113,45 kWh/(m²·a)
Weitere Energiedaten
Heizungsart
Etagenheizung
Details
Weitere Informationen
Haupthaus mit Seeblick
In schöner Umgebung mit Schwimmbad, nur wenige Schritte vom Zentrum und dem See, Reihenhaus mit privatem Garten auf drei Ebenen, wie folgt angeordnet: Eingang, Wohnzimmer mit offener Küche, Bad. Im Obergeschoss Schlafzimmer mit Doppelbett und Balkon, von dem aus Sie einen schönen Blick auf den See...
Anbieter der Immobilie
Garda Haus Srl
Via Meucci 77, 25080 PADENGHE SUL GARDA

Online-ID: 2jqsg56
Referenznummer: PV004465
Finde Angebote wie dieses
Hier geht es zu unserem Impressum, den Allgemeinen Geschäftsbedingungen, den Hinweisen zum Datenschutz und nutzungsbasierter Online-Werbung.