

Praxis zur Miete • provisionsfreiMietkosten auf Anfrage3 Zimmer
Mietkosten auf Anfrage
3 Zimmer
PILLICHSDORF I, Ordination - geförderte Miete, EG Büro / Lokal, 1000/00011451/00002109
Merkmale
- Bezug: sofort
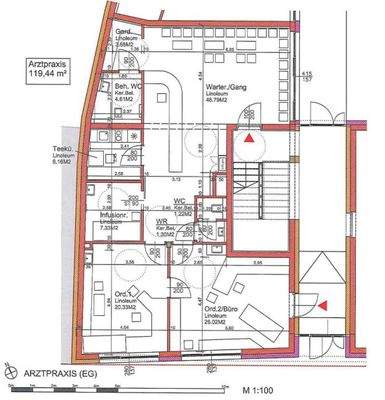
Grundrisse
Grundrisse
1 / 1
Realisiere Dein Projekt
Bausubstanz und Energie
Möchtest du Details zum Energieverbrauch?

- Baujahr2016
- Zustand der Immobilieneuwertig
Mietkosten
Gesamtmiete
1.419,79 €
Nettokaltmiete
nicht angegeben
Provision für Mieter
provisionsfrei
Kaution
keine Angabe
Weitere Preisinformationen
Finanzierungsbeitrag: EUR 7,227.11
Lage

Pillichsdorf (2211)
Der Anbieter hat die genaue Adresse nicht freigegeben
Weitere Informationen
Weitere Services
Lust auf eine Besichtigung?
Eine Frage zur Immobilie?
Über den Anbieter
Siegfried Ludwig-Platz 1, 3100 ST. PÖLTEN

Frau VECERA DanielaDein Kontakt
Online-ID: 25RMWDBT6NNF
Referenznummer: 1000/00011451/00002109


Alpenland Gemeinnützige Bau-, Wohn- und Siedlungsgenossenschaft reg.Gen. m.b.H
Wie zufrieden bist du mit dieser Seite (nicht mit der Immobilie selbst)?

